EasyManua.ls Logo

Delta AS06RTD-A

Delta AS06RTD-A
632 pages
To Next Page IconTo Next Page
To Next Page IconTo Next Page
To Previous Page IconTo Previous Page
To Previous Page IconTo Previous Page
Loading...
Chapter 2 Digital Input/Output Modules
2- 7
2
_
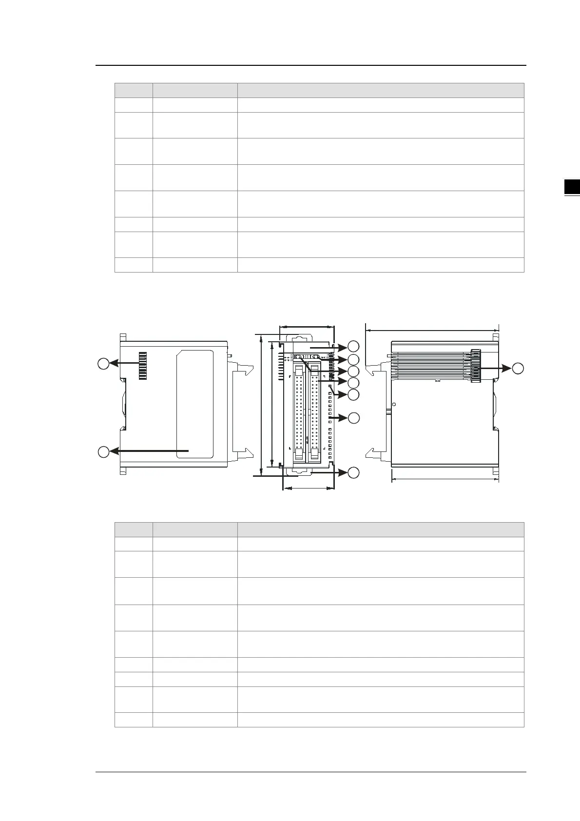
Number
Name
Description
1 Model name Model name of the module
2
Y0/Y1 LED
indicator switch
Switches the LED indicators to their represented outputs.
3 ML connector
For the external I/O connecting cables UC-ET010-24D, UC-ET020-
24D,
UC-ET030-24D
4
Power LED
indicator
Indicates the power status of the module
5
Output LED
indicator
LED indicator is ON during output.
6
DIN rail clip
Secures the DIN rail
7
External module
port
Connects the modules
8
Label
Nameplate
AS64AM10N-A
8
9
92
75
8
88
98.3
1
4
5
2
3
6
2
X0
64AM
40
X1
1
0
0
9
8
4
5
6
7
3
15
14
2
10
12
11
13
40
X3
2
PWR
IN
0
1
X2
0
1
1
7
38.2
35
Unit: mm
Number
Name
Description
1
Model name
Model name of the module
2
LED indicator
switch 1
Switches the LED indicators to their represented inputs.
3
LED indicator
switch 2
Switches the LED indicators to their represented inputs.
4 ML connector
For the external I/O connecting cables UC-ET010-24B, UC-ET020-
24B,
UC-ET030-24B
5
Power LED
indicator
Indicates the power status of the module
6 Input LED indicator If there is an input signal, the input LED indicator is ON.
7 DIN rail clip Secures the DIN rail
8
External module
port
Connects the modules
9
Label
Nameplate

Table of Contents

Related product manuals