EasyManua.ls Logo

Delta VFD055CP43B-21 - Page 23

Delta VFD055CP43B-21
868 pages
Print Icon
To Next Page IconTo Next Page
To Next Page IconTo Next Page
To Previous Page IconTo Previous Page
To Previous Page IconTo Previous Page
Loading...
Chapter 1 IntroductionCP2000
1-14
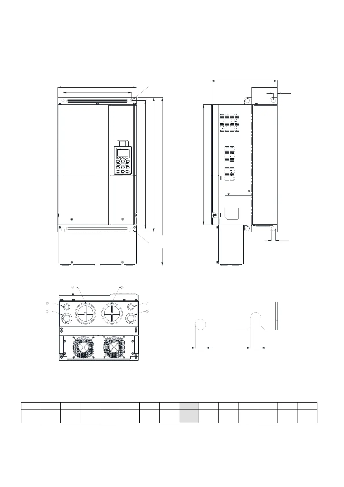
Frame D
D2: VFD370CP23A-21; VFD450CP23A-21; VFD750CP43B-21; VFD900CP43A-21; VFD450CP63A-21;
VFD550CP63A-21
D2
D1
S2
H3
D
H1
1
H
2
3
SEE DETAIL B
DETAIL B
(MOUNTING HOLE)
DETAIL A
(MOUNTING HOLE)
SEE DETAIL A
S1 S1
H2
3
2
1
W
W1
Figure 1-20
Unit: mm [inch]
Frame W H D W1 H1 H2 H3
D1* D2 S1 S2 Φ1 Φ2 Φ3
D2
330.0
[12.99]
688.3
[27.10]
275.0
[10.83]
285.0
[11.22]
550.0
[21.65]
525.0
[20.67]
492.0
[19.37]
107.2
[4.22]
16.0
[0.63]
11.0
[0.43]
18.0
[0.71]
76.2
[3.00]
34.0
[1.34]
22.0
[0.87]
D1*: Flange mounting
See Detail
A
See Detail B
Detail A
(Mounting Hole)
Detail B
(Mounting Hole)

Table of Contents

Related product manuals