EasyManua.ls Logo

Delta VFD110CP4EB-21 - Page 369

Delta VFD110CP4EB-21
868 pages
Print Icon
To Next Page IconTo Next Page
To Next Page IconTo Next Page
To Previous Page IconTo Previous Page
To Previous Page IconTo Previous Page
Loading...
Chapter 12 Description of Parameter SettingsCP2000
12.1-00-8
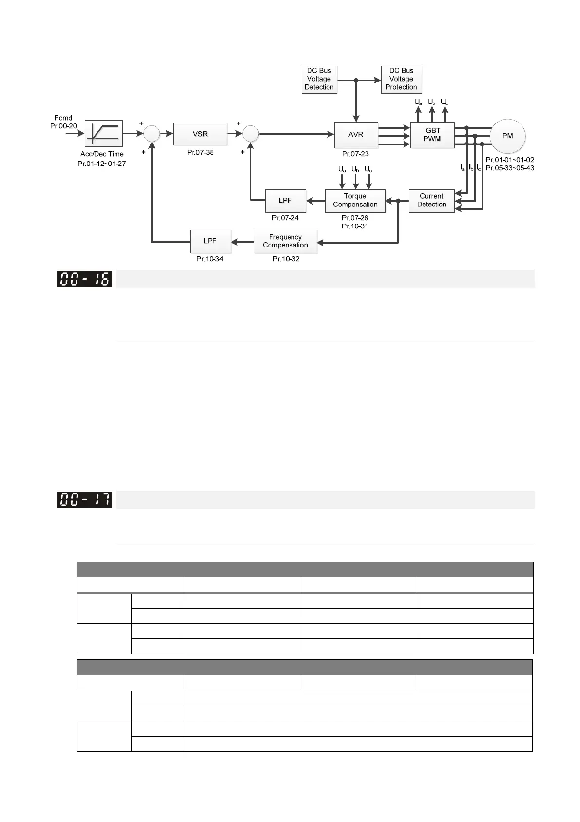
Permanent Magnetic Motor Space Vector Control (PMSVC)
Load Selection
Default: 0
Settings 0: Light load
1: Normal load
Light load (230V & 460V series): over-load rated output current 120% in 60 seconds. Refer to
Pr.00-17 for the setting for the carrier wave. Refer to Pr.00-01 or the specification table in Section
09 for the rated current.
Normal load of 230V & 460V: over-load rated output current 120% in 60 seconds (160%, 3
seconds). Refer to Pr.00-17 for the setting for the carrier wave. Refer to Pr.00-01 or the
specification table in Section 9 for the rated current.
Pr.00-01 varies with the setting value for Pr.00-16. The default value and maximum setting value
for Pr.06-03 and Pr.06-04 also vary with the setting value for Pr.00-16.
Carrier Frequency
Default: Table below
Settings 2–15 kHz
This parameter determinates the PWM carrier frequency for the AC motor drive.
230V
Settings 2–15 kHz 2–10 kHz 2–9 kHz
Light Load
Models 1–20 HP [0.75–15 kW] 25–60 HP [18.5–45 kW] 75–125 HP [55–90 kW]
Default 8 kHz 6 kHz 4 kHz
Normal
Load
Models 0.5–15 HP [0.4–11 kW] 20–50 HP [15–37 kW] 60–100 HP [45–75 kW]
Default 8 kHz 6 kHz 4k Hz
460V
Settings 2–15 kHz 2–10 kHz 2–9 kHz
Light Load
Models 1–25 HP [0.75–18.5 kW] 30–100 HP [22–75 kW] 125–536 HP [90–400 kW]
Default 8 kHz 6 kHz 4 kHz
Normal
Load
Models 0.5–20 HP [0.4–15 kW] 25–75 HP [18.5–55 kW] 100–475 HP [75–355 kW]
Default 8 kHz 6 kHz 4 kHz

Table of Contents

Related product manuals