EasyManua.ls Logo

Delta VFD110CP4EB-21 - Page 861

Delta VFD110CP4EB-21
868 pages
Print Icon
To Next Page IconTo Next Page
To Next Page IconTo Next Page
To Previous Page IconTo Previous Page
To Previous Page IconTo Previous Page
Loading...
Chapter 18 Safe Torque Off Function│CP2000
18-4
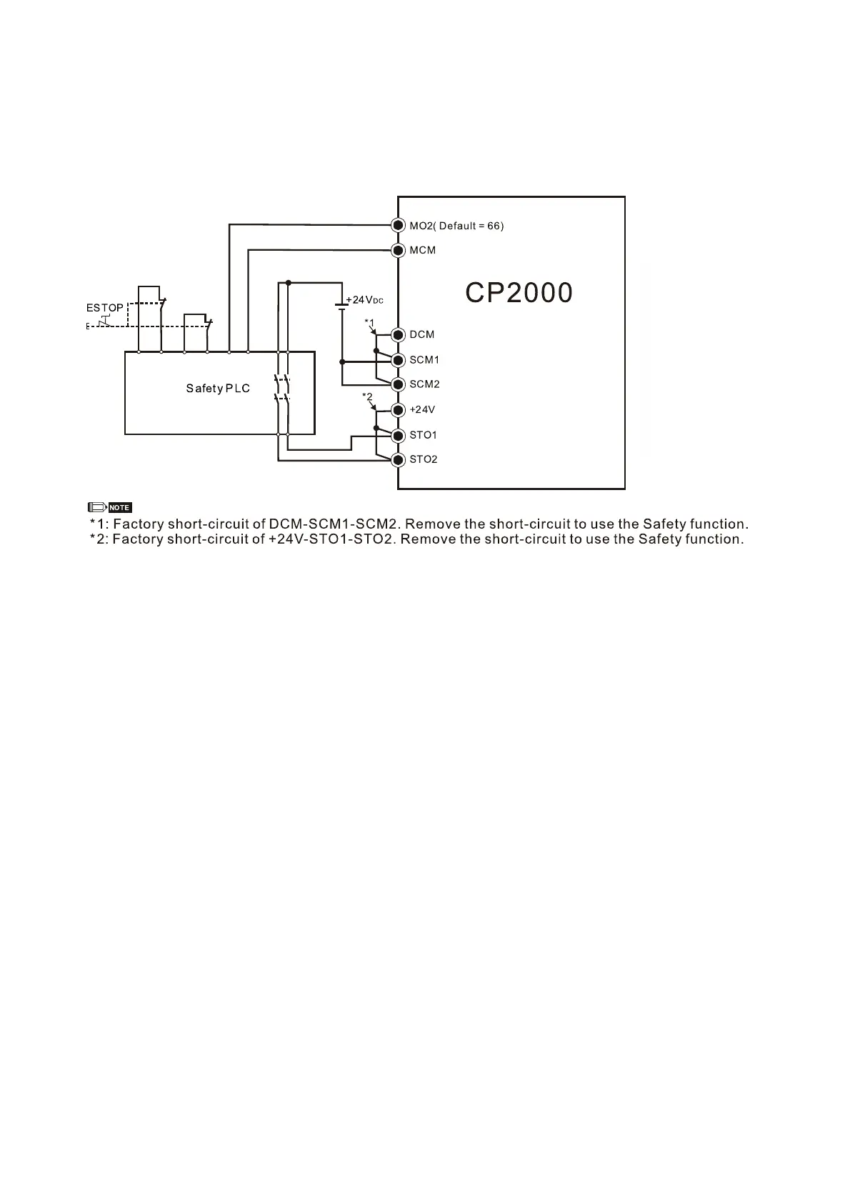
18-3-3 The control loop wiring diagram:
1. Remove the shot-circuit of +24V-STO1-STO2 and DCM-SCM1-SCM2.
2. The wiring as below diagram. The ESTOP switch must at Close status in normal situation and drive
will be able to Run.
3. STO mode, switch ESTOP open. Drive output stop and keypad display STO.

Table of Contents

Related product manuals