EasyManua.ls Logo

Dometic DFMD35 - Page 14

Dometic DFMD35
25 pages
Print Icon
To Next Page IconTo Next Page
To Next Page IconTo Next Page
To Previous Page IconTo Previous Page
To Previous Page IconTo Previous Page
Loading...
14
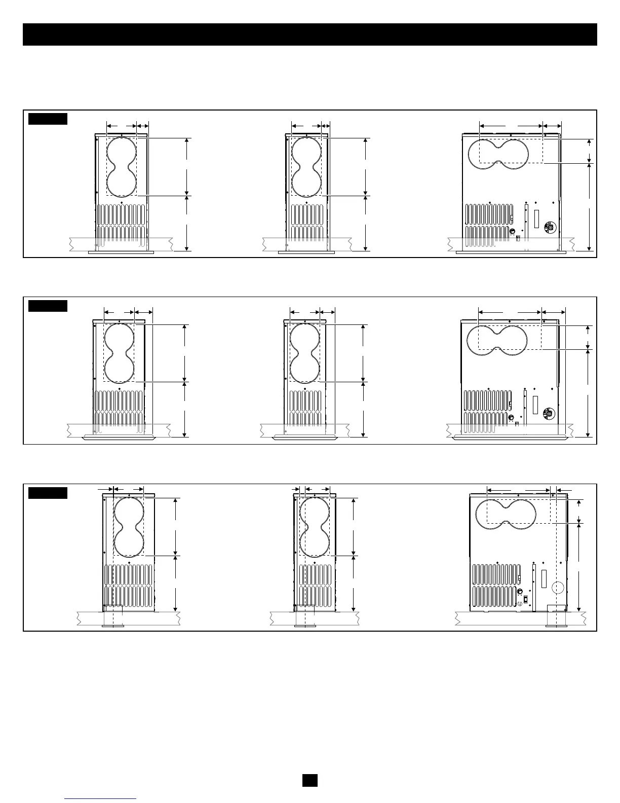
PRE-INSTALLATION
Standard Door Floor Discharge Installations
The dotted lines around the knockouts in the figures represent the floor-hole position.
FIG.1
2.2"
5" 5" 10"
RV Wall
(Top View)
Large Door
Vertical Install
Medium Door
Vertical Install
Medium & Large
Door Horizontal
Install
RV Wall RV Wall
1.2" 3.5"
9.5"
9.75" 9.75"
9.5"
15.1"
4"
Flush Door Floor Discharge Installations
FIG.2
3.5"5" 5" 10"
RV Wall
(Top View)
Large Door
Vertical Install
Medium Door
Vertical Install
Medium & Large
Door Horizontal
Install
RV Wall RV Wall
2.6" 4.9"
9.8"
9.75" 9.75"
9.8"
15.4"
4"
Small Vent Floor Discharge Installations
FIG.3
0.1" 5" 5"
0.9"
1.5"10"
RV Wall
(Top View)
Large Door
Vertical Install
Medium Door
Vertical Install
Medium & Large
Door Horizontal
Install
RV Wall
RV Wall
9.6"9.6"
9.75" 9.75"
15.2"
4"

Other manuals for Dometic DFMD35

Related product manuals