EasyManua.ls Logo

Dometic DM50 - Page 6

Dometic DM50
236 pages
Print Icon
To Next Page IconTo Next Page
To Next Page IconTo Next Page
To Previous Page IconTo Previous Page
To Previous Page IconTo Previous Page
Loading...
DM50
6
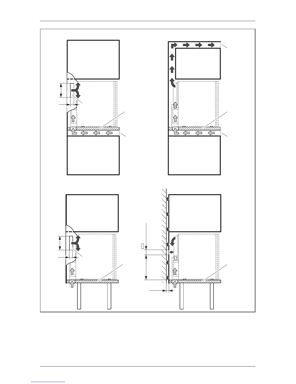
1 1
1 1
AB
CD
≥ 15
30
120
≥ 35 cm²
≥ 35 cm²
30
120
260
30 x 300
≥ 150 cm²
≥ 150 cm²
≥ 150 cm²
7

Table of Contents