EasyManua.ls Logo

Dometic RUC8408X - Installation with Two Rear Vents

Dometic RUC8408X
60 pages
Print Icon
To Next Page IconTo Next Page
To Next Page IconTo Next Page
To Previous Page IconTo Previous Page
To Previous Page IconTo Previous Page
Loading...
EN
Installing the refrigerator RUC5208X, RUC6408X, RUC8408X
14
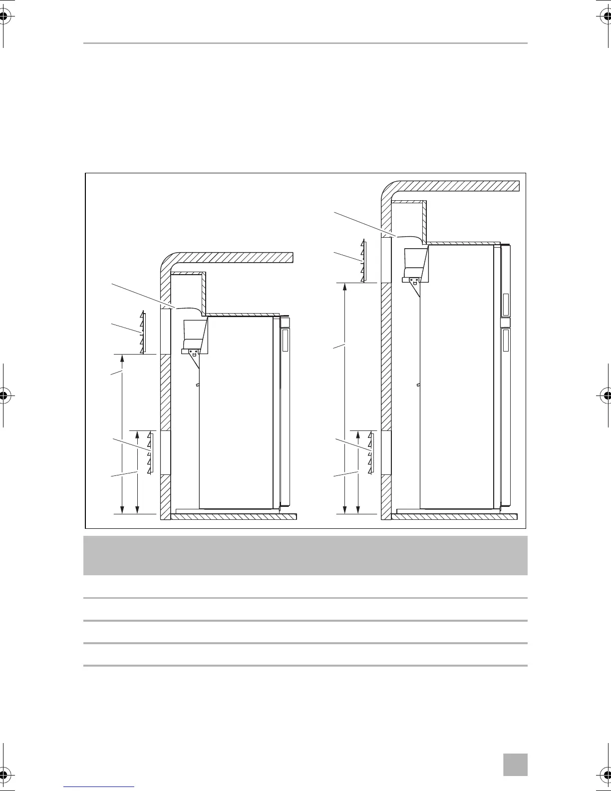
Installation with two rear vents
The air inlet and outlet vents must not be covered by vehicle parts (such as an
open door or by installing accessories such as bicycle racks) while operating.
Install the refrigerator so that it is protected from excessive heat, as this leads to
poor performance and increases the power consumption of the refrigerator.
The electrical installation must comply with national and local regulations.
Pos. in
fig. 6, page 14
Description
1 Maximum height to 250 mm below the compressor shelf
2 LS300 ventilation grille
3 Minimum height is equal to the height of the compressor shelf
4 Air deflection plate
4
2b
2a
3
1
4
2b
2a
3
1
6
RUC8408X--IO-AU.book Seite 14 Donnerstag, 27. Dezember 2018 1:52 13

Related product manuals