EasyManua.ls Logo

Donaldson Ultrapac 2000 midi superplus 977185 - Page 33

Donaldson Ultrapac 2000 midi superplus 977185
64 pages
Print Icon
To Next Page IconTo Next Page
To Next Page IconTo Next Page
To Previous Page IconTo Previous Page
To Previous Page IconTo Previous Page
Loading...
– 31 –
Transporte y
montaje
Montaje
6 6
Transport and
Installation
Installation
Ultrapac 2000 midi sp / 24.09.2008
ES
US
Conexión a la red de aire comprimido
Conectar la instalación debidamente en la entrada de
gas húmedo y en la salida de gas seco.
Controlar todas las uniones atornilladas en cuanto a
asiento fijo.
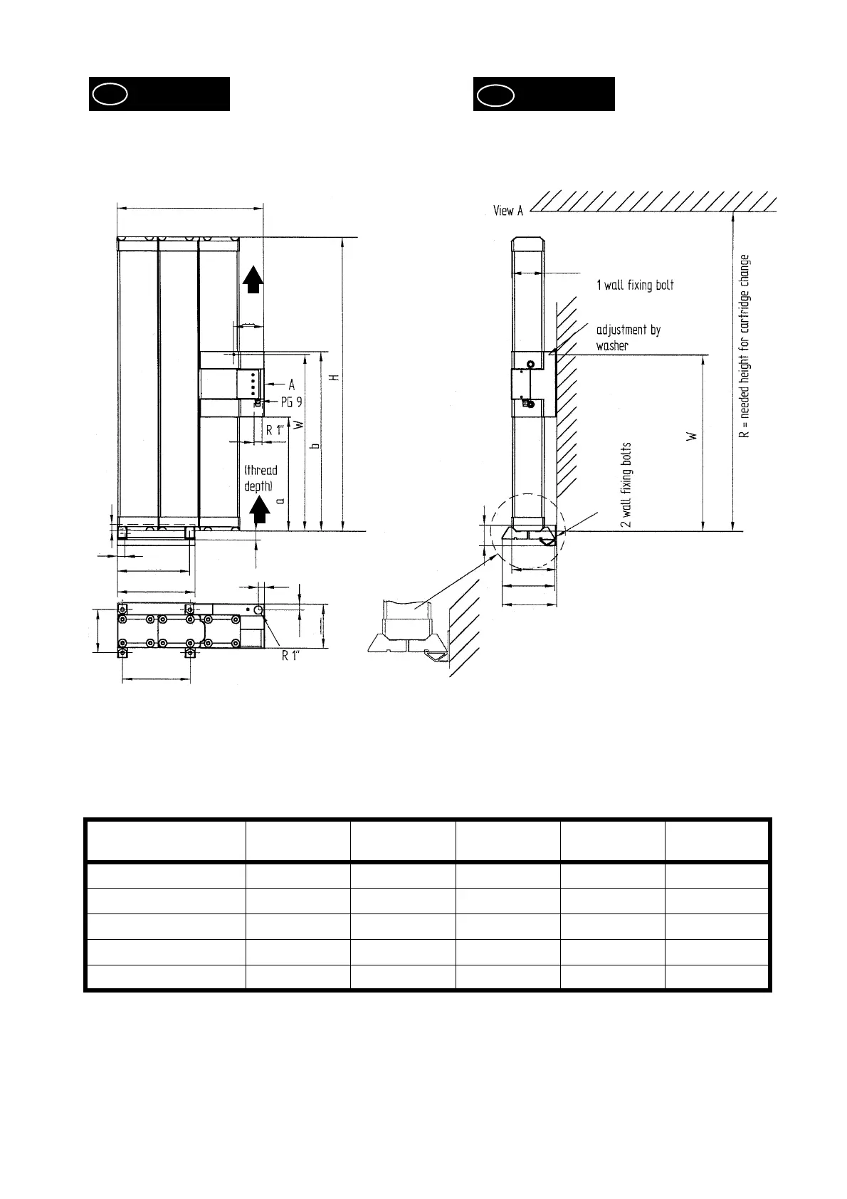
Ultrapac 2000 midi
superplus
HabWR
Typ / Type 0020-60 25 “ 8 “ 8.5 “ 16.5 “ 35 “
Typ / Type 0030-60 35 “ 13 “ 22 “ 21.5 “ 45 “
Typ / Type 0040-60 46“ 18 “ 27 “ 26.5 “ 54.7 “
Typ / Type 0050-60 55“ 22.7 “ 32 “ 31.5 “ 64.7“
Typ / Type 0060-60 64.7 “ 27.7 “ 37 “ 36.5 “ 74.5 “
O
I
I: Entrada / Inlet
O: Salida / Outlet
4 tornillos del suelo (foundation bolts)
Alzado A
R = altura de desmontaje para cambio de cartucho
1 tornillo de fijación
en pared
2 tornillos de fijación en pared
Adaptación
mediante arandelas
pro-
fundidad
9.6“
6
.
1“
0.7“
6.3“
1.3“
0.9“
11“
10.4“
0.5“
0.9“
1“
4.4“
21“
4.7“
6.4“
7.5“
7.8“
3“
Connection to the compressed air network
Connect the unit appropriately to the moist gas inlet
and to the dry gas outlet. Check that all screw
connections have been done up properly.
Fig. 2: Dibujo acotado
Fig. 2: Dimension drawing