EasyManua.ls Logo

DongFeng S30 - Page 180

DongFeng S30
302 pages
Print Icon
To Next Page IconTo Next Page
To Next Page IconTo Next Page
To Previous Page IconTo Previous Page
To Previous Page IconTo Previous Page
Loading...
Circuit Diagrams of Electrical Appliances
21-157
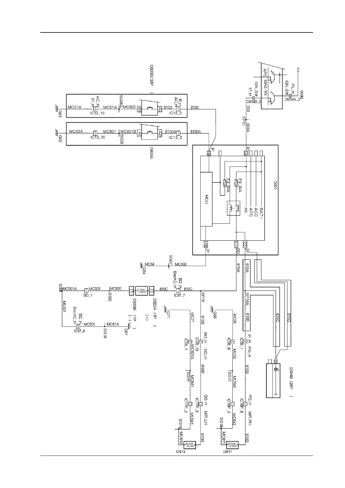
18.4 The electrical schematic diagram for the back window and rear view mirror ‘s fog
removing (H30)
Green
***It is used for manual o
p
erated air conditionin
g
The manual operated
air conditioning
control module
Yell o w
g
reen
Green
y
ellow
*** It is used for automatic air conditionin
g
Automatic air
conditioning control
module
Red
Brown
The ignition switch
The engine compartment
fuse box
Brown
Green
Cabin fuse box
The back window
frost removing relay
Yell o w
g
reen Green
y
ellow
Yell o w
g
reen
Yell o w
g
reen
Red
The back
window
heating
Black
Black
The back window
heating
Brown
Red
Green
y
ellow
Green
y
ellow
Yell o w
g
reen
The rear view mirror heating
Red
Yell o w
g
reen
Yell o w
Yell o w
Yell o w
Yell o w
Yell o w
Green
y
ellow
Green
y
ellow
Yell o w
g
reen
Green
The combined instrument
The electric heating fog removing indicator ligh
t
***Without rear view mirror heating
Blue
***With rear view mirror heating