EasyManua.ls Logo

DongFeng S30 - Page 182

DongFeng S30
302 pages
Print Icon
To Next Page IconTo Next Page
To Next Page IconTo Next Page
To Previous Page IconTo Previous Page
To Previous Page IconTo Previous Page
Loading...
Circuit Diagrams of Electrical Appliances
21-159
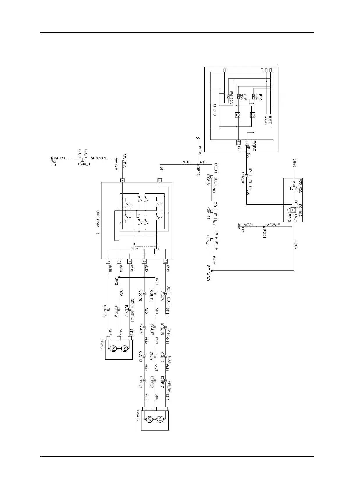
19.2 The electrical schematic diagram for the electric rear view mirror S30/H30) (it is
applicable to 6 digits after VIN, VIN <005834
The electric rear view mirror switch
Green
y
ellow
Green
y
ellow
Black
Yell o w
green
Pink
Red
UP
Down
Left
Right
Right
Right
Left
Left
Yell o w
Yell o w
Yell o w
Green
Green
Green
Gre
y
Brown
Blue
Blue
Blue
Red
Yell o w
Green
Brown
Vertical
Horizontal
The left rear view mirror
ad
j
ustment motor
The right rear view mirror
ad
j
ustment motor
Vertical
Horizontal
Cabin fuse box
The left back electric
vehicle window
The right back electric
vehicle window
Sk
y
li
g
h
t
Pink
Green
y
ellow
Green
y
ellow
Pink
Yell o w
Yell o w
Red
Battery
Red
The en
g
ine com
p
artment
Pink
Pink
The driver lock main switch
White