EasyManua.ls Logo

DongFeng S30 - Page 26

DongFeng S30
302 pages
Print Icon
To Next Page IconTo Next Page
To Next Page IconTo Next Page
To Previous Page IconTo Previous Page
To Previous Page IconTo Previous Page
Loading...
Circuit Diagrams of Electrical Appliances
21-18
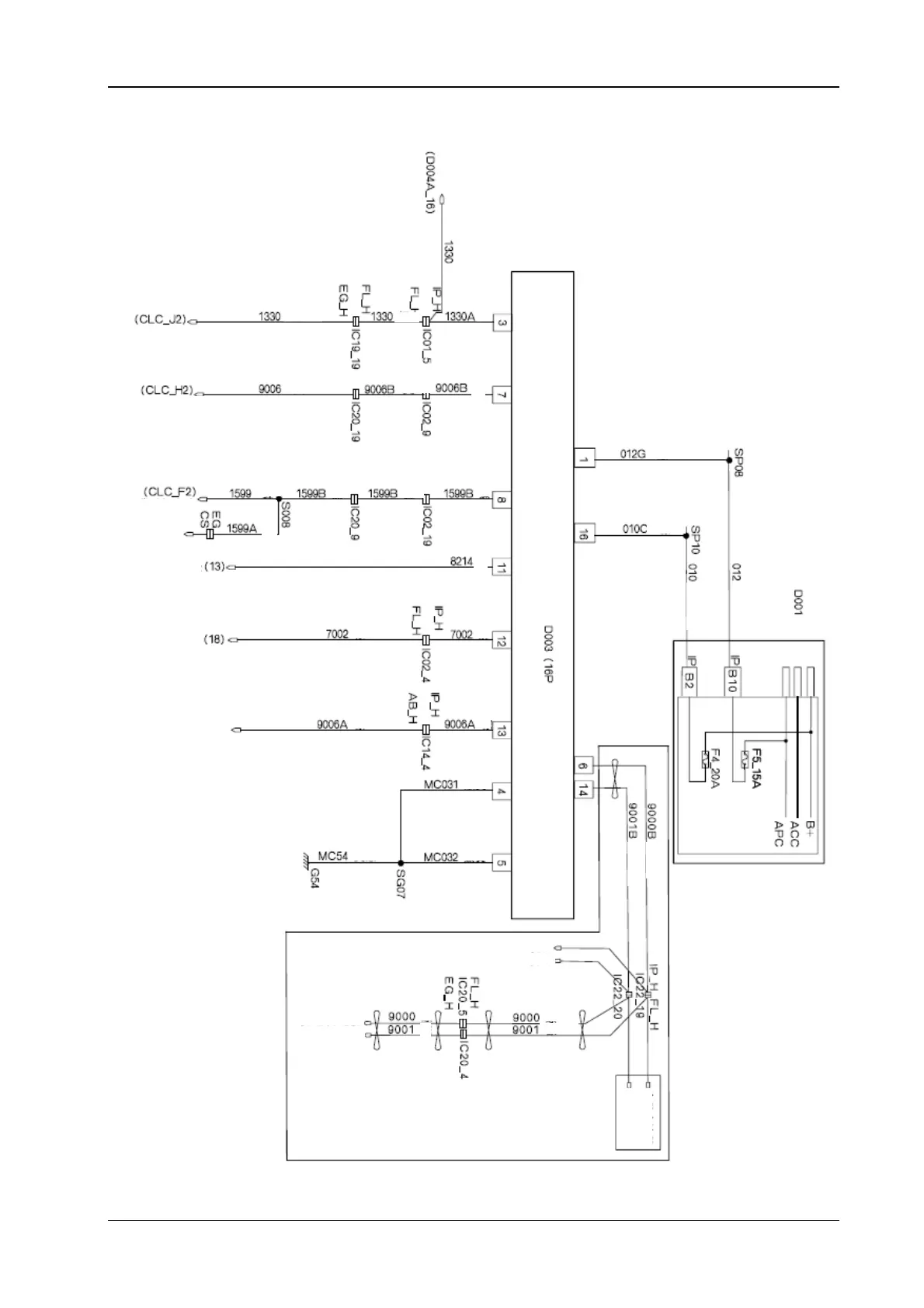
1. Electrical schematic diagram of diagnostic socket
Engine computer
Combination
instrument
Engine computer
Engine computer
Engine
computer
Engine
computer
Red
R
ed
Red
Cooling fan moto
r
Yellow
R
ed
Yellow
Yellow
Yellow
Yellow
Theftproof controlle
r
module
Green
Green
Green
Green
R
ed
Green
Green
Green
Green
Green
Cabin fuse box
Brown
Brown
Brown
Brown
Brown
Brown
Brown
Diagnostic unit
Black
)
SRS control module
ABS control module
Grey
Green
yellow
Green
yellow
Automatic
transmissio
Yellow
green
Used for automatic transmission
Instrument
Instrument