EasyManua.ls Logo

Doosan 7/31E - Page 35

Doosan 7/31E
90 pages
Print Icon
To Next Page IconTo Next Page
To Next Page IconTo Next Page
To Previous Page IconTo Previous Page
To Previous Page IconTo Previous Page
Loading...
MAINTENANCE 31
7/26E, 7/31E, 7/41
COMPRESSOR LUBRICATION
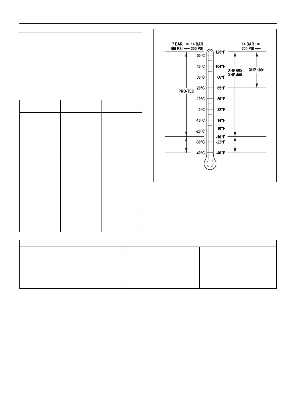
Portable Compressor Fluid Chart
Refer to these charts for correct compressor fluid required. Note that
the selection of fluid is dependent on the design operating pressure of
the machine and the ambient temperature expected to be encountered
before the next oil change.
Note: Fluids listed as “preferred” are required for extended
warranty.
Compressor oil carryover (oil consumption) may be greater with
the use of alternative fluids.
Doosan preferred fluids - the use of these fluids with original Doosan
branded filters can extend airend warranty. Refer to operator’s manual
warranty section for details or contact your Portable Power
representative.
Note: Stage 3B & Stage 4 engines are required to use CJ-4/ACEA E9 engine oil only, failure to do so will result in engine after treatment
damage. Please read the engine manual for more details.
Design operating
pressure
Ambient
temperature
Compressor oil
specification
7 bar to 14 bar
(100 psi to 200 psi)
-23°C to 52°C
(-10°F to 125°F)
Preferred:
PRO-TEC
Alternate:
ISO Viscosity Grade
46 with rust and
oxidisation inhibitors,
designed for air
compressor service.
14 bar and above
(200 psi and above)
-23°C to 52°C
(-10°F to 125°F)
Preferred:
XHP 605
Alternate:
XHP 405
ISO Viscosity Grade
68 Group 3 or 5 with
rust and oxidisation
inhibitors, designed
for air compressor
service.
18°C to 52°C
(65°F to 125°F)
Preferred:
XHP 605
XHP 1001
RATED OPERATING PRESSURE
consult
factory
consult
factory
Doosan preferred fluids
PRO-TEC engine oil 46652105 (20.0 Litres) 46652106 (208.0 Litres)
Stage 3B and 4 engine oil 46551222 (20.0 Litres) 46551223 (208.0 Litres)
PRO-TEC compressor oil 89292973 (20.0 Litres) 89292981 (208.0 Litres)
XHP 605 compressor oil 22252076 (19.0 Litres) 22252050 (208.2 Litres)
XHP 1001 compressor oil - 35300516 (208.2 Litres)
XHP 405 compressor oil 22252126 (19.0 Litres) 22252100 (208.2 Litres)

Other manuals for Doosan 7/31E

Related product manuals