EasyManua.ls Logo

Doosan 7/31E - Page 57

Doosan 7/31E
90 pages
Print Icon
To Next Page IconTo Next Page
To Next Page IconTo Next Page
To Previous Page IconTo Previous Page
To Previous Page IconTo Previous Page
Loading...
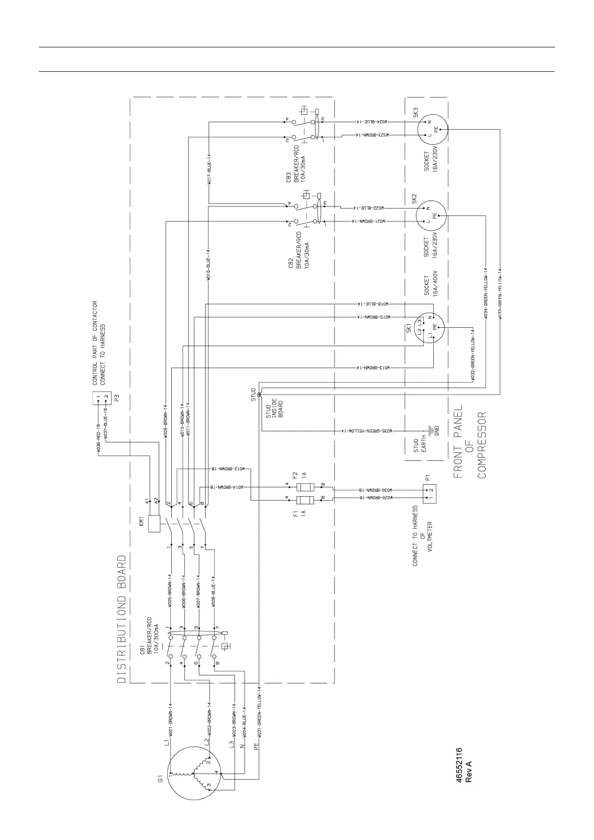
OPTIONS 53
7/26E, 7/31E, 7/41
A.C. Electrical Power Schematic Diagram. 7/26E, 7/31E, 7/41 (400/230V)

Other manuals for Doosan 7/31E

Related product manuals