EasyManua.ls Logo

Doosan 7/41 - Page 38

Doosan 7/41
90 pages
Print Icon
To Next Page IconTo Next Page
To Next Page IconTo Next Page
To Previous Page IconTo Previous Page
To Previous Page IconTo Previous Page
Loading...
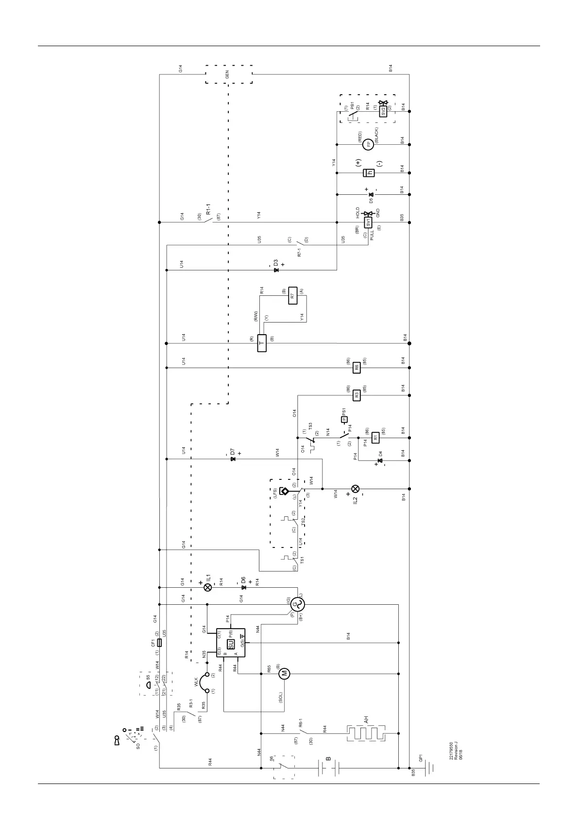
34 ELECTRICAL SYSTEM
7/26E, 7/31E, 7/41
7/41

Other manuals for Doosan 7/41

Related product manuals