EasyManua.ls Logo

Drolet Deco - Page 29

Drolet Deco
47 pages
Print Icon
To Next Page IconTo Next Page
To Next Page IconTo Next Page
To Previous Page IconTo Previous Page
To Previous Page IconTo Previous Page
Loading...
Deco Installation and Operation Manual
29
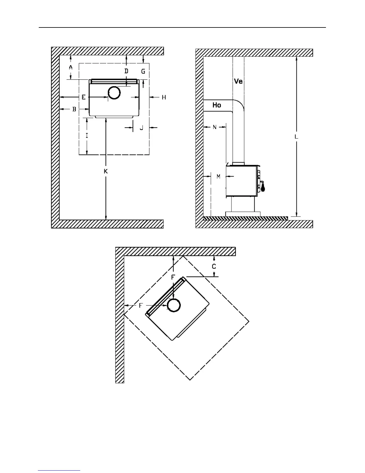
Clearances to combustible materials and floor protection

Table of Contents

Related product manuals