EasyManua.ls Logo

Drolet Savannah - Page 34

Drolet Savannah
54 pages
Print Icon
To Next Page IconTo Next Page
To Next Page IconTo Next Page
To Previous Page IconTo Previous Page
To Previous Page IconTo Previous Page
Loading...
Savannah Installation and Operation Manual
34
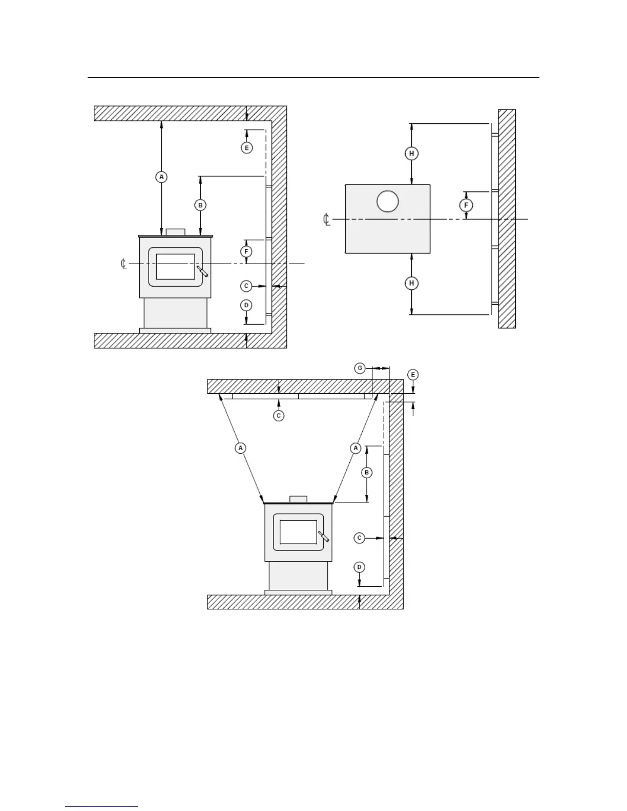
Clearances for shield construction

Table of Contents

Related product manuals