EasyManua.ls Logo

DSC PC1550 - Page 21

DSC PC1550
24 pages
Print Icon
To Next Page IconTo Next Page
To Next Page IconTo Next Page
To Previous Page IconTo Previous Page
To Previous Page IconTo Previous Page
Loading...
TM
PC1550
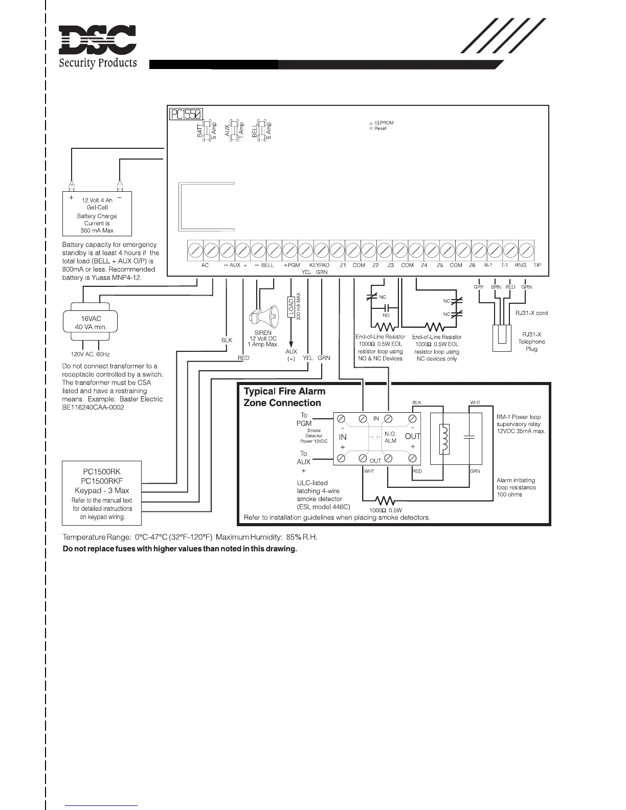
Control Panel Wiring Diagram
Incorrect connections may result in fuse failure or improper operation. Inspect wiring and ensure connections are correct
before applying power. Do not route any wiring over circuit boards. Maintain at least 1” (25.4mm) distance.
For future reference, detach this sheet and apply to the inside of the cabinet door.
!
INDUSTRY CANADA NOTICE
NOTICE: The Industry Canada label identifies certified equipment. This certification
means that the equipment meets certain telecommunications network protective,
operational and safety requirements. Industry Canada does not guarantee the equipment
will operate to the users satisfaction.
Before installing this equipment, users should ensure that it is permissible to be
connected to the facilities of the local telecommunications company. The equipment
must also be installed using an acceptable method of connection. The customer should
be aware that compliance with the above conditions may not prevent degradation of
service in some situations.
Repairs to certified equipment should be made by an authorized Canadian maintenance
facility designated by the supplier. Any repairs or alterations made by the user to this
equipment, or equipment malfunctions, may give the telecommunications company
cause to request the user to disconnect the equipment.
User should ensure for their own protection that the electrical ground connections of the
power utility, telephone lines and internal metallic water pipe system, if present, are
connected together. This precaution may be particularly important in rural areas.
CAUTION: Users should not attempt to make such connections themselves, but should
contact the appropriate electric inspection authority, or electrician, as appropriate.
The Load Number (LN) assigned to each terminal device denotes the percentage of the
total load to be connected to a telephone loop which is used by the device, to prevent
overloading. The termination on a loop may consist of any combination of devices
subject only to the requirement that the total of the Load Numbers of all the devices does
not exceed 100.
The Load Number of this unit is 2.
AVIS: Létiquette de lIndustrie Canada identifie le matériel homologué. Cette étiquette
certifie que le matériel est conforme à certaines normes de protection, dexploitation et de
sécurité des réseaux de télécommunications. Industrie Canada nassure toutefois pas que le
matériel fonctionnera à la satisfaction de lutilisateur.
Avant dinstaller ce matériel, lutilisateur doit sassurer quil est permis de le raccorder aux
installations de lentreprise locale de télécommunication. Le matériel doit également être
installé en suivant une méthode acceptée de raccordement. Labonné ne doit pas oublier quil
est possible que la conformité aux conditions énoncées ci-dessus nempêchent pas la
dégradation du service dans certaines situations.
Les réparations de matériel homologué doivent être effectuées par un centre dentretien
canadien autorisé désigné par le fournisseur. La compagnie de télécommunications peut
demander à lutilisateur de débrancher un appareil à la suite de réparations ou de modifications
effectuées par lutilisateur ou à cause de mauvais fonctionnement.
Pour sa propre protection, lutilisateur doit sassurer que tous les fils de mise à la terre de la
source dénergie électrique, les lignes téléphoniques et les canalisations deau métalliques,
sil y en a, sont raccordés ensemble. Cette précaution est particulièrement importante dans
les régions rurales.
AVERTISSEMENT: Lutilisateur ne doit pas tenter de faire ces raccordements lui-même;
il doit avoir recours à un service dinspection des installations électriques, ou à un
électricien, selon le cas.
Lindice de charge (IC) assigné a chaque dispositif terminal indique, pour éviter toute
surcharge, le pourcentage de la charge totale qui peut être raccordée à un circuit téléphonique
bouclé utilisé par ce dispositif. La terminaison du circuit bouclé peut être constituée de
nimporte quelle combinaison de dispositifs, pourvu que la somme des indices de charge de
lensemble des dispositifs ne dépasse pas 100.
LIndice de charge de ce produit est 2.

Table of Contents

Other manuals for DSC PC1550

Related product manuals