EasyManua.ls Logo

Ducane RHP13 - Unit Dimensions; Overall Dimensions; Rear and Top Dimensions; Side Dimensions

Ducane RHP13
8 pages
Print Icon
To Next Page IconTo Next Page
To Next Page IconTo Next Page
To Previous Page IconTo Previous Page
To Previous Page IconTo Previous Page
Loading...
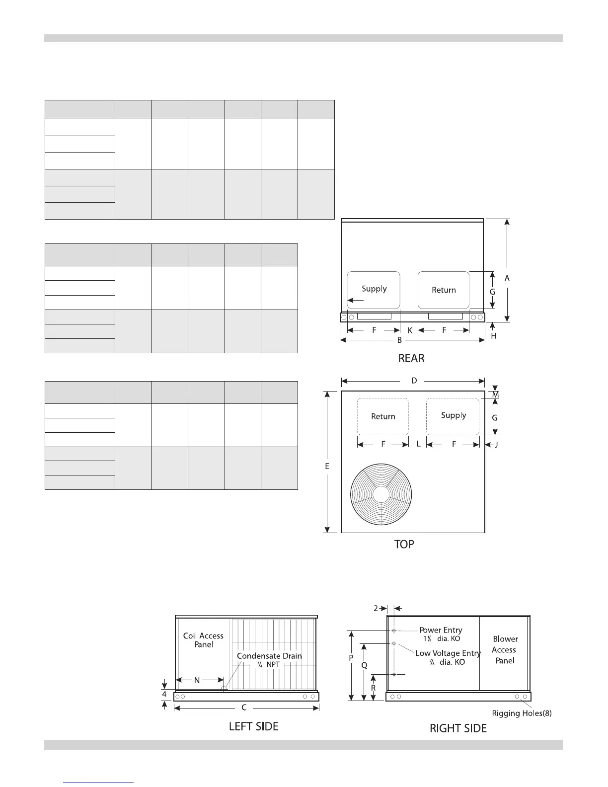
RHP13 Package Heat Pump
Dimensions(in.)
Model No. A B C D E F
RHP13-24
32-1/2 46-1/2 46-1/2 45-5/8 45-5/8 17-1/2RHP13-30
RHP13-36
RHP13-42
34-1/2 55-1/2 50-1/2 54-5/8 49-5/8 21-1/2RHP13-48
RHP13-60
Model No. G H J K L
RHP13-24
11-1/2 5-1/2 1-5/8 4 4RHP13-30
RHP13-36
RHP13-42
12 5-1/2 1-5/8 6-1/4 5-5/8RHP13-48
RHP13-60
Model No. M N P Q R
RHP13-24
1-3/4 15-5/8 27-3/4 24-7/8 9-3/4RHP13-30
RHP13-36
RHP13-42
2-3/8 17-1/8 29-3/4 26-7/8 15-1/2RHP13-48
RHP13-60
Elec. Heat
Power Entry
- Page 6 -

Related product manuals