EasyManua.ls Logo

Ducar DF3000H - Wiring Diagram

Default Icon
58 pages
Print Icon
To Next Page IconTo Next Page
To Next Page IconTo Next Page
To Previous Page IconTo Previous Page
To Previous Page IconTo Previous Page
Loading...
Type
-
- 47 -
4-stroke/air cooling/single cylinder/OHV horizontal shaft
Displacement 196 cm
3
Ignition Model Transistorized Magneto
Starting Model Recoil Start (electric start)
Max. Output 4.8/3600
Fuel Tank Capacity 15L(Gal)
Oil Capacity 1.1L(Gal)
Continuous Work
Time (full load)
Dimensions
(l×w×h)(mm)
600mm×440mm×445mm
Generating
set
Dry Weight (kg) 32kg (35kg) 35kg (39kg) 38kg (41kg)
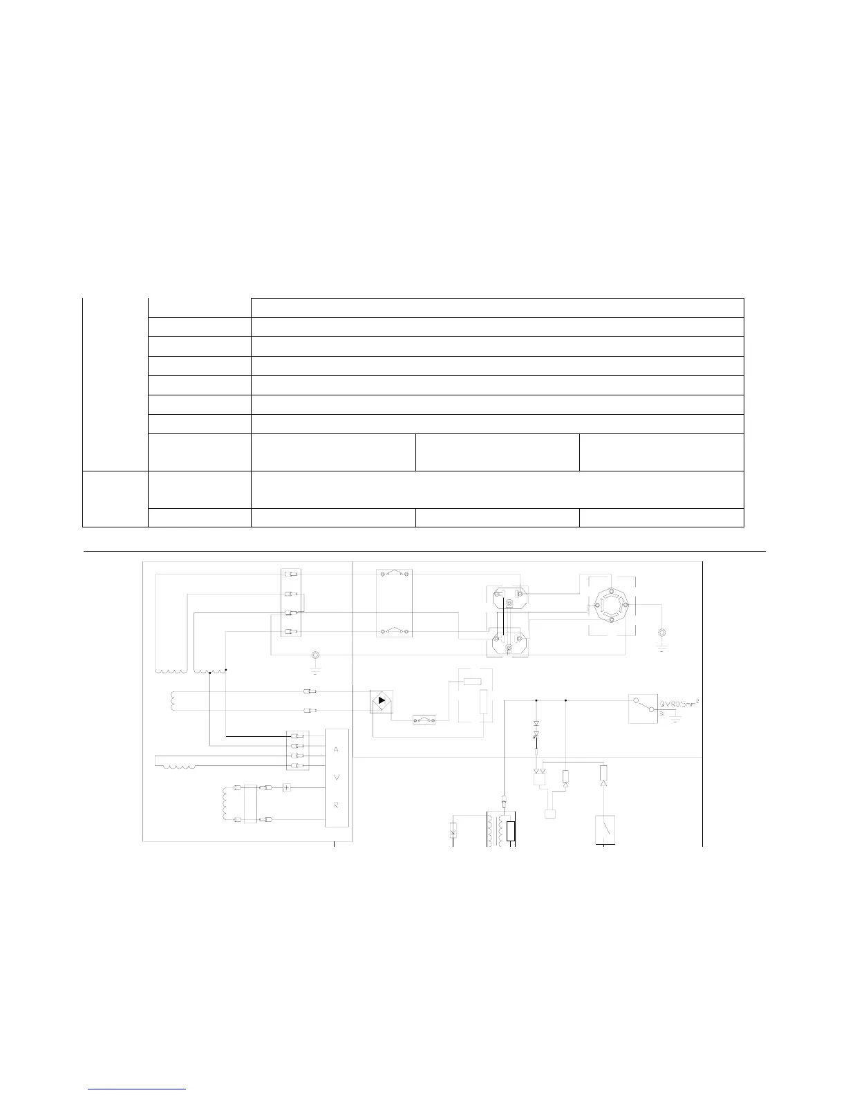
WIRING DIAGRAM
Bl
Bl
Bl
R
R
R
W
W
W
W
Y/ G
Y/ G
Bl
Bl
Bl
W
R
Bu
Bu
R
W
Bl / W
Bl / W
Oil alert unit
Bl
R
D
LED
Bl
Gr
Bl
Bu
Bu
Dc coil 1
Bu
Bu
Sub- f i ed coi l
Gener at or wi r i ng di agr am
Fi el d c oi l
R
W
Mai n coi l
Bu
Bu
W
Bl
Gr
R
Br eaker
Engi ne bl ock
Ccnt r ol box di agr am
Engine brake switch
So c k e t
Socket
Y/ G

Related product manuals