EasyManua.ls Logo

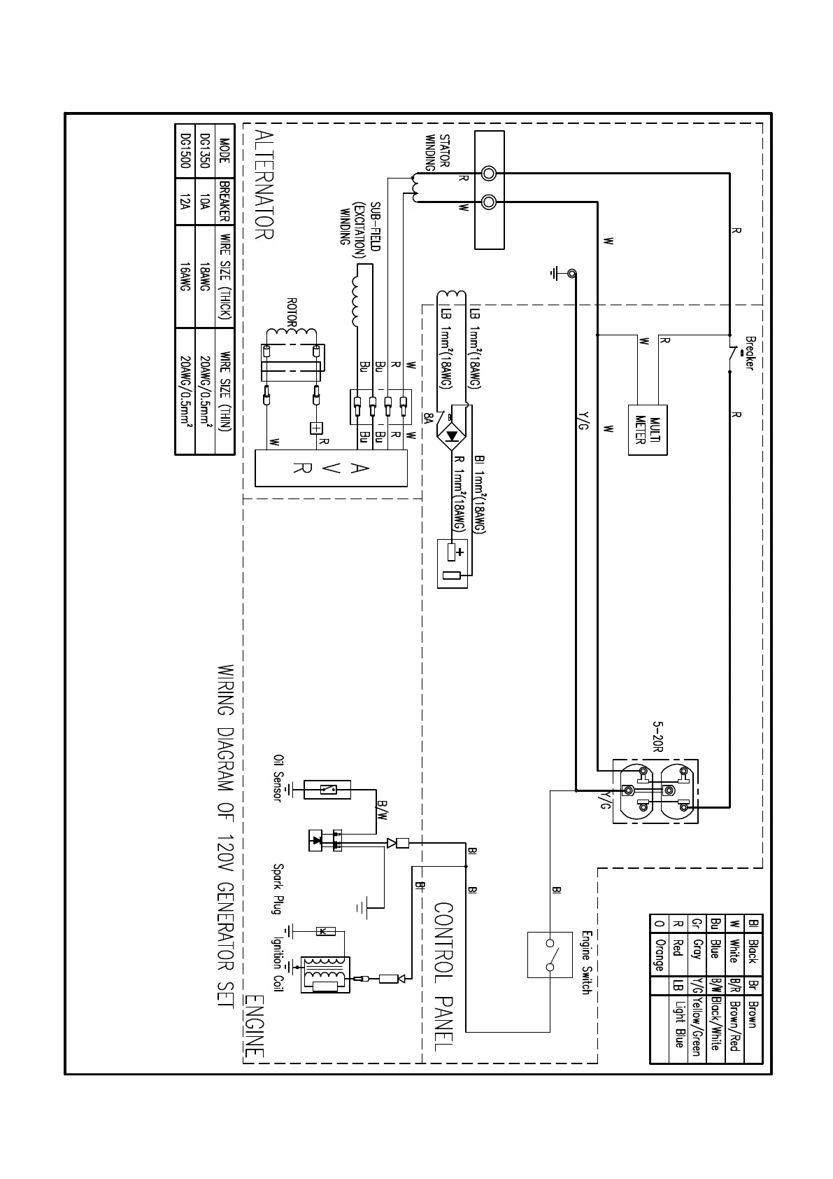
Ducar DG1500 - Electrical Schematic Diagram

Ducar DG1500
25 pages
Print Icon
To Next Page IconTo Next Page
To Next Page IconTo Next Page
To Previous Page IconTo Previous Page
To Previous Page IconTo Previous Page
Loading...
Recoil Start
20

Related product manuals