EasyManua.ls Logo

Dukane DK100 - 2.7. INSTALLATION FOR DK100;DK120 & N30 A21 A KIT

Dukane DK100
25 pages
Print Icon
To Next Page IconTo Next Page
To Next Page IconTo Next Page
To Previous Page IconTo Previous Page
To Previous Page IconTo Previous Page
Loading...
03-TM-0037 REV 13
Page 10 of 24
Figure 4. Installation of N30A26
Series Mounting Kit and Beacon
D. Insert the beacon into the mounting cradle
with the water switch facing forward and/or
downward with reference to the aircraft. Rotate
the beacon in the mount so that the beacon
replacement date can be read. See Figure 4.
E. Screw securing plate in place with the set of
furnished screws and washers. Tighten until the
securing plate makes contact with the frame in
the area of the screws, with approximately 15 to
20 inch-pounds torque.
F. Perform the Operational Test outlined in
Section IV.
2.7. INSTALLATION PROCEDURES FOR
THE DK100/DK120 AND THE N30A21A
MOUNTING KIT.
2.7.1. GENERAL. Space limitations sometimes
require the use of the strap-type N30A21A
Mounting Kit. Where a choice exists, horizontal
mounting with switch forward is best. If vertical
mounting is employed, mount switch down to
reduce accumulation of grease, dirt, and water on
the switch end of the beacon.
2.7.2. MOUNTING PROCEDURE
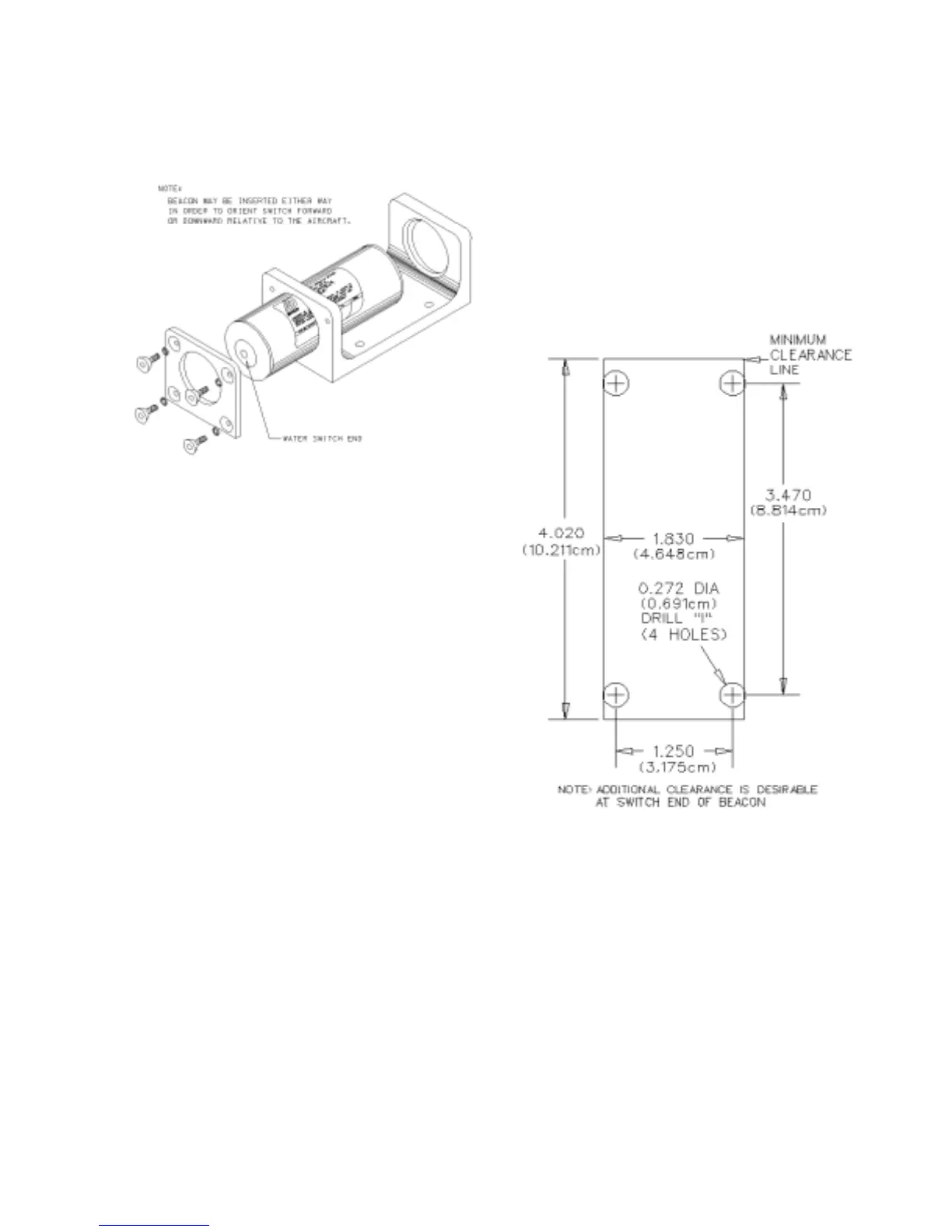
A. Lay out four holes as shown in Figure 5.
Position mounting kit carefully to avoid interfer-
ence with other structures. Observe the clear-
ances required as shown in Figures 5 and 6, and
in established tool and maintenance clearances.
B. Drill the four 0.272 inch (0.691 cm) (“I” drill)
holes in the mounting surface as shown in Figure
5.
Figure 5. Mounting Hole Template
for N30A21A Mounting Kit
C. Test the beacon as outlined in Section IV to
insure operation prior to installation.
D. Slip the retainer straps of the mounting kit
over the ends of the beacon. See Figures 7 and 8.
E. Insert the ends of the retainer straps through
the 0.272 inch (0.691 cm) holes in the mounting
surface. When horizontal mounting is used,
position beacon with switch end forward.
C. Test the beacon as outlined in Section IV to
insure operation prior to installation.

Table of Contents