EasyManua.ls Logo

Dunham-Bush System LST - Page 6

Dunham-Bush System LST
16 pages
Print Icon
To Next Page IconTo Next Page
To Next Page IconTo Next Page
To Previous Page IconTo Previous Page
To Previous Page IconTo Previous Page
Loading...
Page 6 of 16
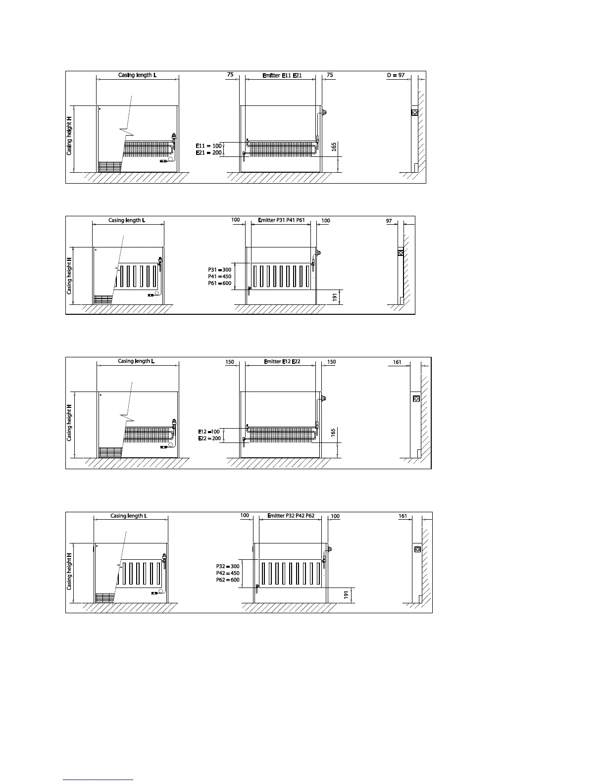
Style B 97mm Element Emitter
Style B 97mm Panel Emitter
Style B 161mm Element Emitter
Style B 161mm Panel Emitter

Related product manuals