EasyManua.ls Logo

E.C.A. GeliosPlus 11 - Page 7

E.C.A. GeliosPlus 11
36 pages
Print Icon
To Next Page IconTo Next Page
To Next Page IconTo Next Page
To Previous Page IconTo Previous Page
To Previous Page IconTo Previous Page
Loading...
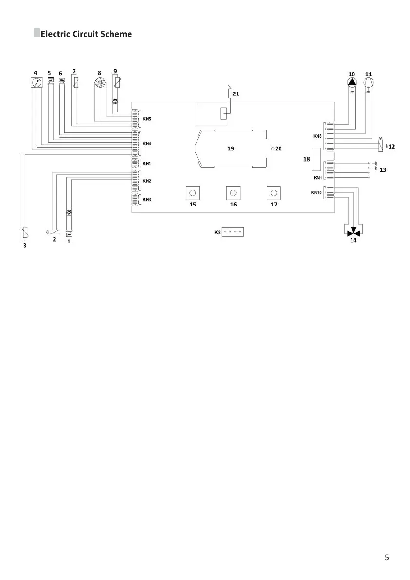
1- ROOM THERMOSTAT (Opt.)
2- GAS VALVE MODULATOR
3- CH TEMPERATURE SENSOR
4- WATER PRESSURE SENSOR
5- LIMIT THERMOSTAT
6- AIR PRESSURE SWITCH
7- DHW TEMPERATURE SENSOR
8- TURBINE
9- OUTSIDE TEMP. (Optional)
10- PUMP
11- FAN
12- GAS VALVE
13- SUPPLY CABLE
14- 3 WAY VALVE
15- POTENTIOMETER DHW TEMP.
16- POTENTIOMETER CH. TEMP.
17- ON / OFF / RESET / SUMMER / WINTER MODE
18- FUSE
19- LCD DISPLAY
20- FAILURE LED
21- IGNITION AND IONISATION ELECTRODE

Related product manuals