EasyManua.ls Logo

Eaton URTDII - Page 2

Eaton URTDII
10 pages
Print Icon
To Next Page IconTo Next Page
To Next Page IconTo Next Page
To Previous Page IconTo Previous Page
To Previous Page IconTo Previous Page
Loading...
1.0 Introduction
The Universal RTD Module II (URTDII) is an electronic
resistance-temperature detector accessory for the following
devices:
Table 1, Applicable Devices
MP3000 EMR3000
MP4000 EMR4000
FP6000 EMR5000
IQ1000II ETR4000
ETR5000
The URTDII can be used to monitor as many as 12 RTD
inputs, These inputs fall into four groups that consist of: six
motor windings, two motor bearings, two load bearings,
and two auxiliary RTDs.
The URTDII can be programmed to accept any of the fol-
lowing types of RTD inputs:
100 ohm platinum
100 ohm nickel
120 ohm nickel
10 ohm copper
The RTD type can be selected for each of the four RTD
groups. For example, The motor winding RTD inputs can
be programmed for 10 ohm copper and the motor bearing
RTD inputs can be programmed for 120 ohm nickel.
The URTDII can transmit its information to a protective
device using a fiber optic link. It can be mounted remotely
up to 122 meters (400 feet) from the protective device
when using the fiber optic link.
The URTDII can also be used as a stand-alone device
that communicates on a Modbus network. A bidirectional
RS485 port is provided on the bottom of the unit.
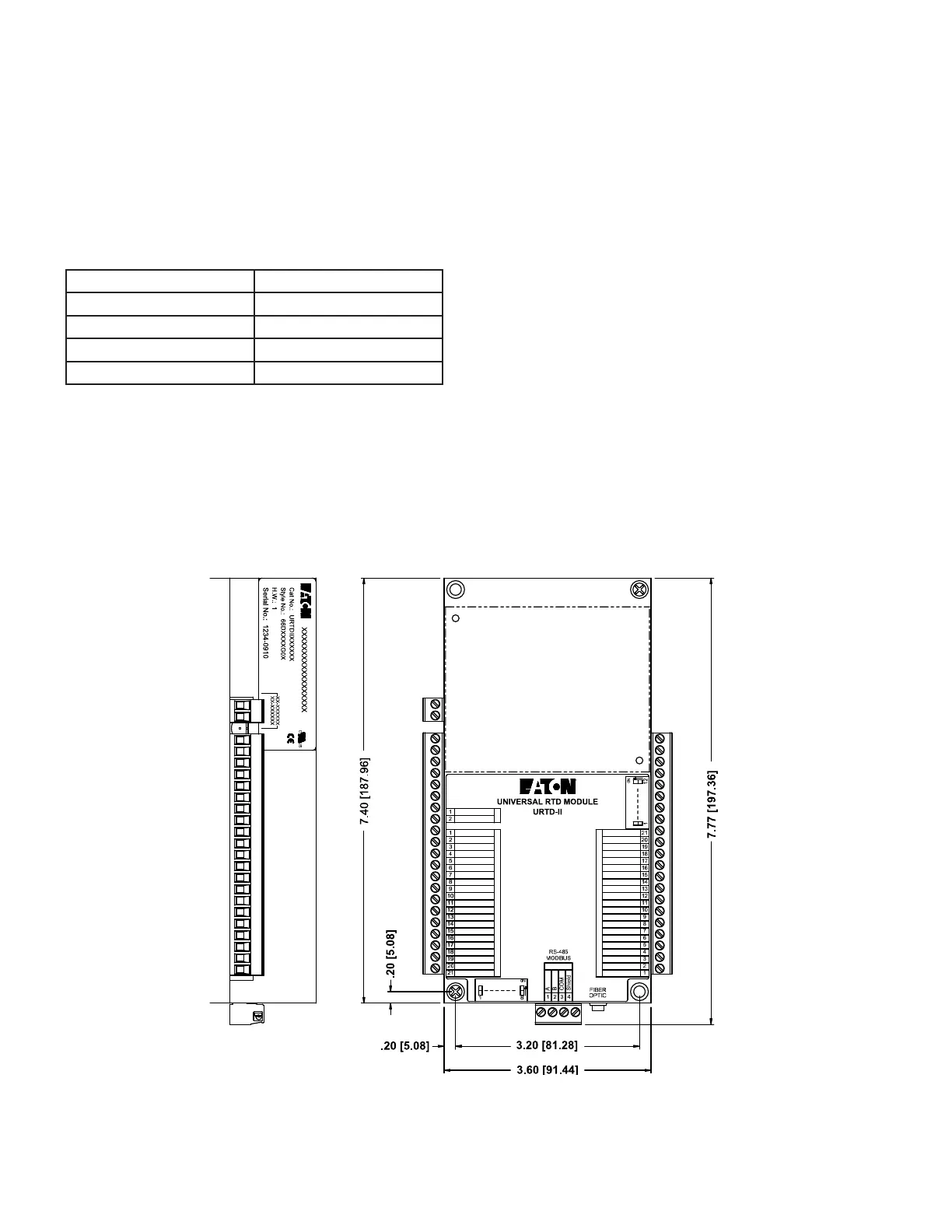
2.0 Assembly Drawing
The URTDII dimensions are shown in Figure1.
J2
J10B
RTD7C/MB1C
RTD7+/MB1+
RTD7-/MB1-
Shield
RTD8C/MB2C
RTD8+/MB2+
RTD8-/MB2-
RTD9C/LB1C
RTD9+/LB1+
RTD9-/LB1-
Shield
RTD10C/LB2C
RTD10+/LB2+
RTD10-/LB2-
RTD11C/AUX1C
RTD11+/AUX1+
RTD11-/AUX1-
Shield
RTD12C/AUX2C
RTD12+/AUX2+
RTD12-/AUX2-
PWR IN 2
PWR IN 1
S2
S1
J11
J10A
RTD6C/MW6C
RTD6+/MW6+
RTD6-/MW6-
Shield
RTD5C/MW5C
RTD5+/MW5+
RTD5-/MW5-
RTD4C/MW4/C
RTD4+/MW4+
RTD4-/MW4-
Shield
RTD3C/MW3C
RTD3+/MW3+
RTD3-/MW3-
RTD2C/MW2C
RTD2+/MW2+
RTD2-/MW2-
Shield
RTD1C/MW1C
RTD1+/MW1+
RTD1-/MW1-
Figure 1, Dimension Drawing
2
IL02602013E Universal Resistance Temperature
November 2010 Detector (RTD) Module II
IL02602013E - November 2010 - www.eaton.com

Related product manuals