EasyManua.ls Logo

EAW MK5394 - Page 2

EAW MK5394
2 pages
Print Icon
To Previous Page IconTo Previous Page
To Previous Page IconTo Previous Page
Loading...
Eastern Acoustic Works One Main Street Whitinsville, MA 01588 tel 800 992 5013 / 508 234 6158 fax 508 234 8251 www.eaw.com
EAW products are continually improved. All specifications are therefore subject to change without notice. Part Number: RD0284 (1) MK5394 June 2005
MK5394 Specifications Preliminary group · MK
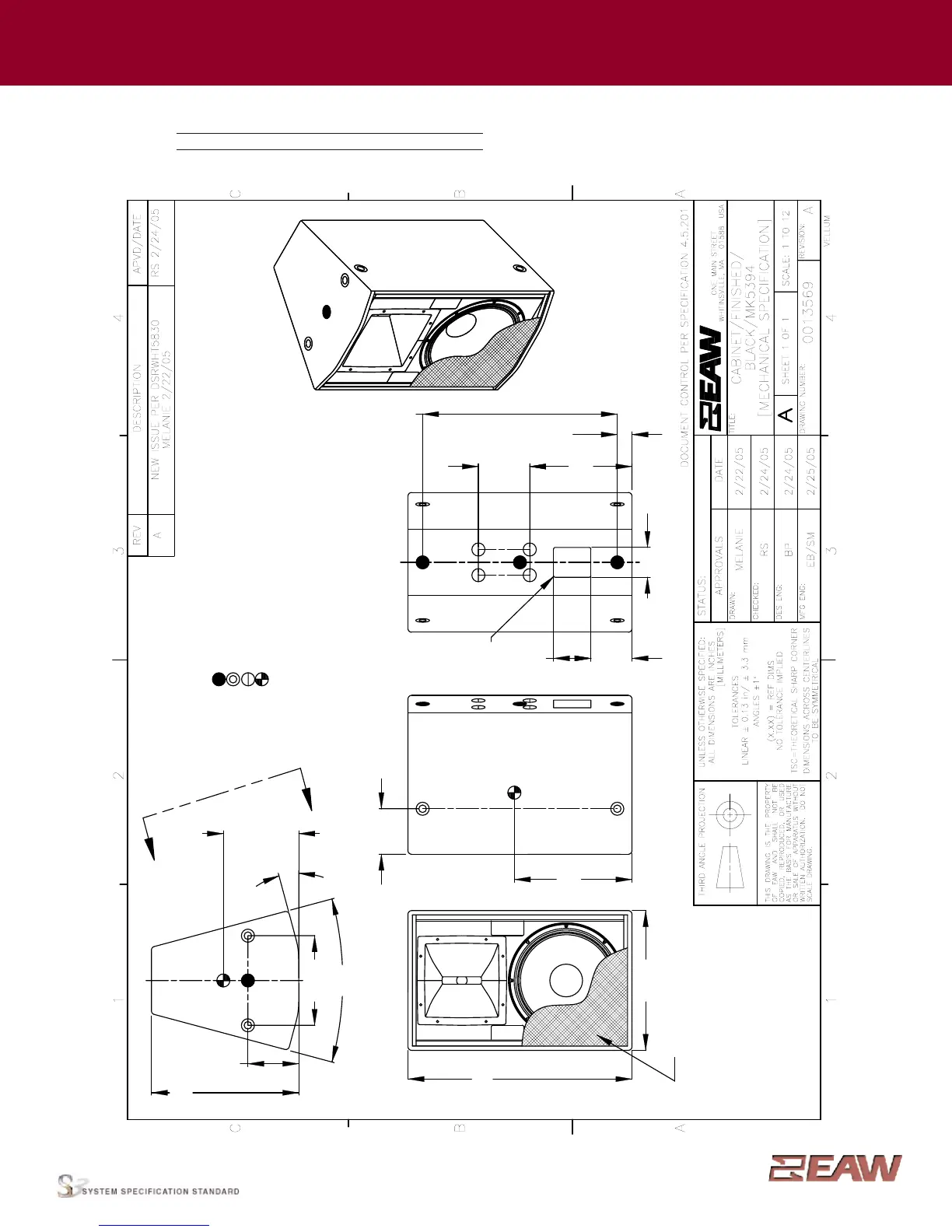
ENCLOSURE
Material Baltic birch plywood
Finish Wear resistant textured black paint
Grille Powder-coated perforated steel
NOTES:
1. SYMBOL INDICATES MOUNTING POINT, 3/8-16 THREADED HOLE (NUT PLATE).
2. SYMBOL INDICATES MOUNTING POINT, 3/8-16 THREADED HOLE (PI ANGLE).
3. SYMBOL INDICATES MOUNTING POINT, 5/16-18 T-NUT FOR SERIES 120 OMNI MOUNT.
4. SYMBOL INDICATES CENTER OF BALANCE.
5. WEIGHT APPROX. 77 lb [34.9 kg].
6. SHIPPING WEIGHT APPROX. 87 lb [39.5 kg].
BACK
INPUT
[127.0]
4.00
5.50
[762.0]
30.00
[400.1]
15.75
VIEW A-A
DIMENSIONS APPLY TO
BOTH SIDES
[139.7]
5.00
FRONT
[475.2]
GRILLE PARTIALLY SHOWN
18.71
C
[154.9]
6.10
TOP/BOTTOM
DIMENSIONS APPLY TO
BOTH SIDES
30°
6.80
[172.7]
A
A
2X 15°
[209.6]
NOT TO
SCALE
8.25
L
12.00
[304.8]
[501.1]
19.73
[662.2]
6.87
[347.7]
[174.5]
[50.0]
1.97
[101.6]
13.69
MK5394
EA STERN ACOUSTIC WORKS
PRODUCTION
26.07
L
C
NOTES: This drawing has been reduced. Do not scale.
For WP version, add 0.25 in / 6.4 mm to the outside dimensions = 0.125 in / 3.2 mm all around.

Related product manuals