EasyManua.ls Logo

EAW SB600z - Page 2

EAW SB600z
4 pages
Print Icon
To Next Page IconTo Next Page
To Next Page IconTo Next Page
To Previous Page IconTo Previous Page
To Previous Page IconTo Previous Page
Loading...
Eastern Acoustic Works One Main Street Whitinsville, MA 01588 tel 800 992 5013 / 508 234 6158 fax 508 234 8251 www.eaw.com
EAW products are continually improved. All specifications are therefore subject to change without notice. Part Number: RD0231 (A) SB600zF April 2005
SB600zF Specifications group · S
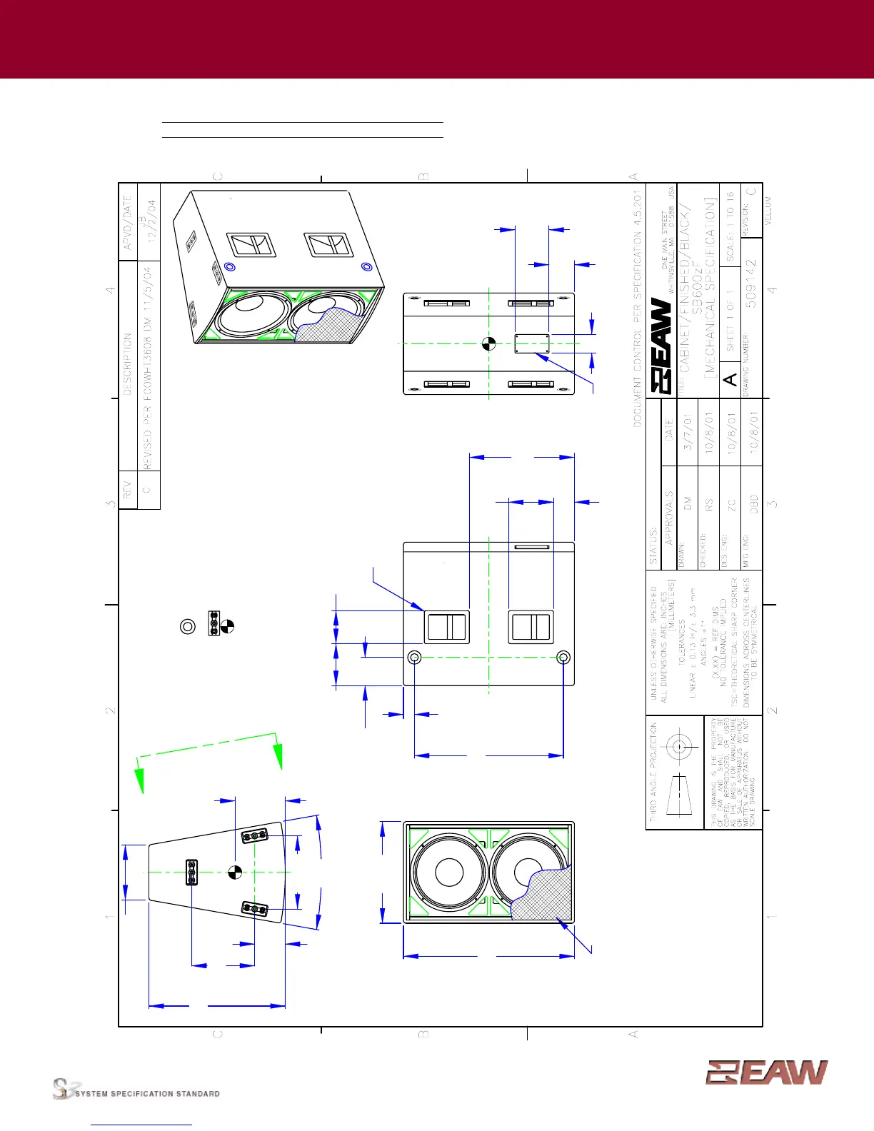
ENCLOSURE
Material Baltic birch plywood
Finish Wear resistant textured black paint
Grille Powder-coated perforated steel
SB600zF
BACK
INPUT
3.63
NOTES:
1. SYMBOL INDICATES MOUNTING POINT
3/8-16 THREADED HOLE.
2. SYMBOL INDICATES 3.00 [7.62] X 1.35 [34.3] FLYTRACK.
3. SYMBOL INDICATES CENTER OF BALANCE.
4. WEIGHT APPROX. 140 lb [63.5 kg].
5. SHIPPING WEIGHT APPROX. 158 lb [71.7 kg].
19.75
[501.7]
2X 8.16
5.48
2X 2.13
2X 6.44
2X HANDLE
[2X 54.2]
28.98
GRILLE PARTIALLY SHOWN
FRONT
[844.5]
33.25
[736.1]
4.06
DIMENSIONS APPLY
TO BOTH SIDES
VIEW A-A
[103.1]
PRODUCTION
2X 8.75
20.44
C
L
C
L
[519.2]
[2X 222.2]
[2X 207.3]
26.50
20°
5.94
12.25
DIMENSIONS APPLYTO
TOP & BOTTOM
14.23
TOP
[361.3]
[311.2]
[673.1]
[150.9]
9.75
A
[139.2]
[247.6]
(10.71)
L
C
[272.1]
A
[2X 163.6]
L
C
4.93
EA STERN A C O USTIC W O RKS
[92.2]
[125.3]
[168.4]
6.63
NOTE: This drawing has been reduced. Do not scale.

Related product manuals