EasyManua.ls Logo

Eco ETS 73 - Page 23

Eco ETS 73
112 pages
Print Icon
To Next Page IconTo Next Page
To Next Page IconTo Next Page
To Previous Page IconTo Previous Page
To Previous Page IconTo Previous Page
Loading...
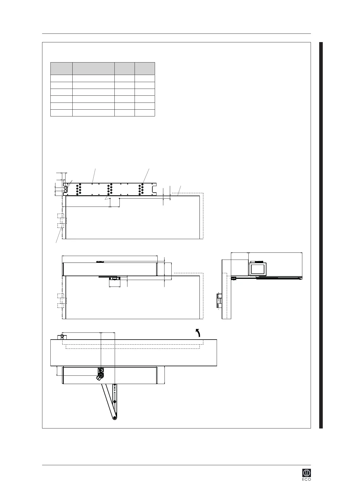
ETS 73

346
68
18
3*
21**
689
80
0...240

280 100
70
130
21
124
M6
24
23
34
Ø20
z
10
95 1129
0548-990/52g

Mounng and operang instrucons






 

*

**

 0 3 21
0548-190  3...13 31
0548-191  3...23 41
0548-192  3...33 51
0548-193  3...43 61
0548-194  3...53 71






Table of Contents

Other manuals for Eco ETS 73

Related product manuals