EasyManua.ls Logo

Eco ETS 73 - Page 27

Eco ETS 73
112 pages
Print Icon
To Next Page IconTo Next Page
To Next Page IconTo Next Page
To Previous Page IconTo Previous Page
To Previous Page IconTo Previous Page
Loading...
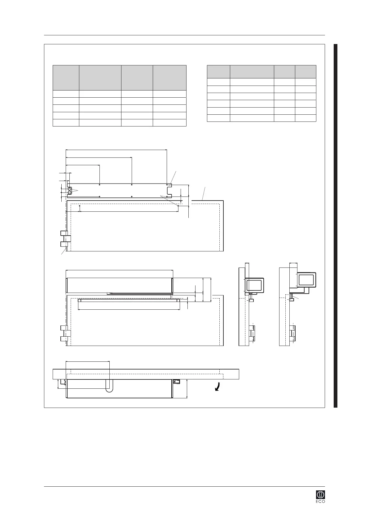
ETS 73

217
76
26*
59**
424
650
633
689
653
16
95
120
60
280
-30...0
M6
24
23
26
Ø20
z

17
42
153
10
58
0548-990/52g

Mounng and operang instrucons























  105 
31...50  105 
51...80  100 
81...100  95 
101...120  95 
 

*

**

 0 26...51 59
0548-190  36...61 69
0548-191  46...71 79
0548-192  56...81 89
0548-193  66...91 99
0548-194  76...101 109


Table of Contents

Other manuals for Eco ETS 73

Related product manuals