EasyManua.ls Logo

Eco ETS 73 - Page 31

Eco ETS 73
112 pages
Print Icon
To Next Page IconTo Next Page
To Next Page IconTo Next Page
To Previous Page IconTo Previous Page
To Previous Page IconTo Previous Page
Loading...
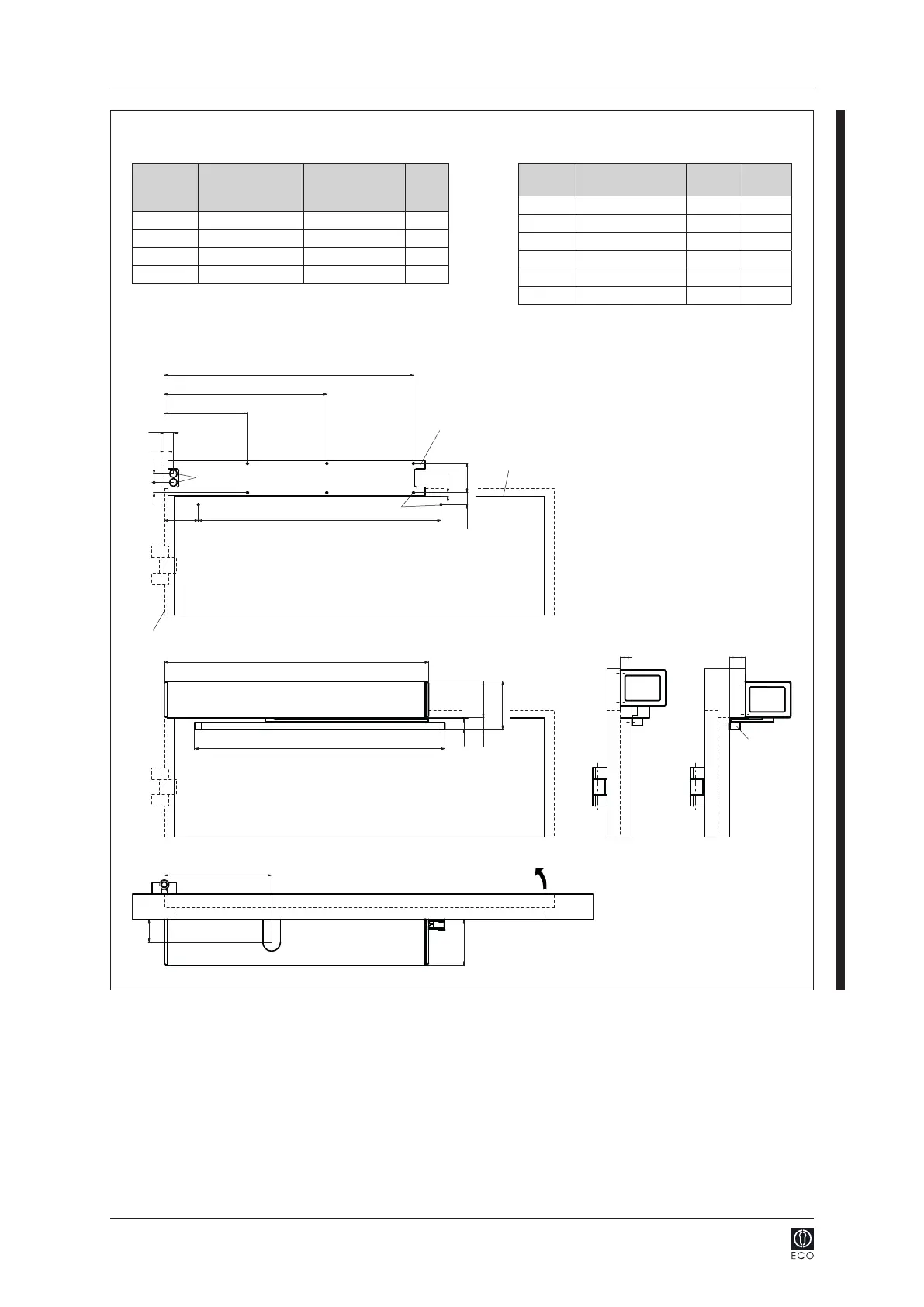
ETS 73

217
9*
76
424
650
689
653
30 95
125
120
60
280
M6
24
23
26
Ø20
z
633
-30...0

10
17
31**
0548-990/52g

Mounng and operang instrucons















-



 740 105 89
11...20 730 105 79
21...30 730 100 79
31...50 730 95 79
 

*

**

 0 9 31
0548-190  9...19 41
0548-191  9...29 51
0548-192  9...39 61
0548-193  9...49 71
0548-194  9...59 81


Table of Contents

Other manuals for Eco ETS 73

Related product manuals