EasyManua.ls Logo

Eico E20 80 - Page 5

Eico E20 80
Print Icon
To Next Page IconTo Next Page
To Next Page IconTo Next Page
To Previous Page IconTo Previous Page
To Previous Page IconTo Previous Page
Loading...
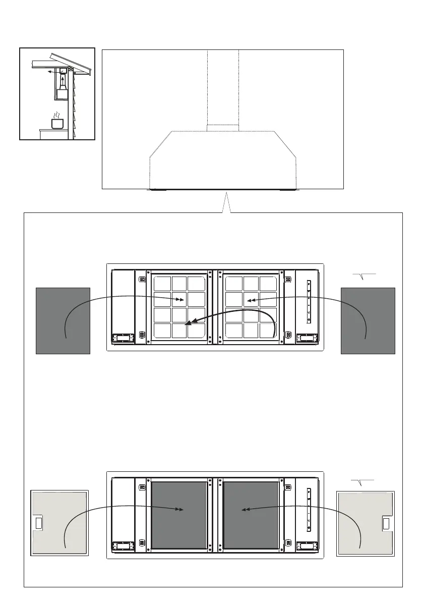
on motor
1
2
2
33
F
Aktivkohlefilter
Charcoal Filter
Filtre à charbon
Koolstoffilter
Filtro al carbòn
Filtro al carbone
Fettfilter
Anti- Grease Filter
Filtre antigraisse
Vetfilter
Filtro antigrasa
Filtro antigrasso
EICO E20 80

Related product manuals