EasyManua.ls Logo

Electrolux 534108 - Page 5

Electrolux 534108
7 pages
Print Icon
To Next Page IconTo Next Page
To Next Page IconTo Next Page
To Previous Page IconTo Previous Page
To Previous Page IconTo Previous Page
Loading...
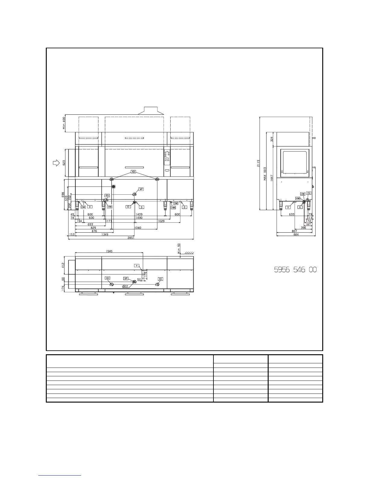
Electrolux Dishwashing
Rack Type WTM200
Internet: http://www.electrolux.com/foodservice
IEBD0102011-09-16Subject to change without notice
XP - Connection for detergent probe
XP - Connection for detergent dispenser
V - Condensation outlet
HWI - Hot water inlet G 3/4" G 3/4"
EQ - Equipotential screw
EI - Electrical connection 400 V, 3N, 50 400 V, 3N, 50
D - Water drain G 1 1/2" G 1 1/2"
CWI - Cold water inlet G 3/4" G 3/4"
LEGEND
WTM200ELA
534109
WTM200ELB
534111
534109, 534111

Related product manuals