EasyManua.ls Logo

Electrolux C40/110 - Page 24

Electrolux C40/110
29 pages
Print Icon
To Next Page IconTo Next Page
To Next Page IconTo Next Page
To Previous Page IconTo Previous Page
To Previous Page IconTo Previous Page
Loading...
24
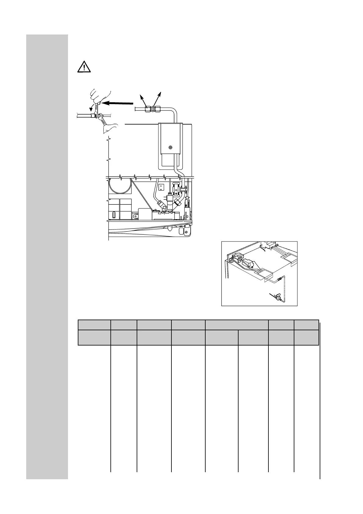
The gas connection to the appliance is effected by means of a suitable
coupling tube fitting L8, DIN 2353-ST, complying with Worksheet G607 of
DVGW or EN1949 respectively. (e.g. Ermeto)
The gas connection may only be carried out by a qualified personnel.
Following proper installation, a testing for
leakage and a flame test must be carried out
by *qualified personnel in compliance with
Worksheet G607 or EN1949 respectively.
A certificate of testing must be issued.
* qualified personnel
Qualified personnel are accredited experts
who are able, by virtue of their training
and knowledge, to vouch for the correct
implementation of the leakage test.
The refrigerator must be equipped with a
gas cock (C) in the supply line to allow the
supply to be disconnected. Such a cutout
device must be readily accessible to the user.
SW 14
SW 17
C
Gas-pressure
BE X
DK X
DE XX
FI X
FR X
GR XX
IE X X
IS X
IT X
LU X X
NL X X
NO X
AT XX
PT X X
SE X
CH X X
ES X
UK X X
Category I
3P(30)
I
3P(37)
I3P(50) I3+ I
3B/P(50)
I
3B/P(30)
mbar 30 37 50 28-37 30-37 50 30

Related product manuals