EasyManua.ls Logo

Electrolux EHT8M - Page 14

Electrolux EHT8M
36 pages
Print Icon
To Next Page IconTo Next Page
To Next Page IconTo Next Page
To Previous Page IconTo Previous Page
To Previous Page IconTo Previous Page
Loading...
16
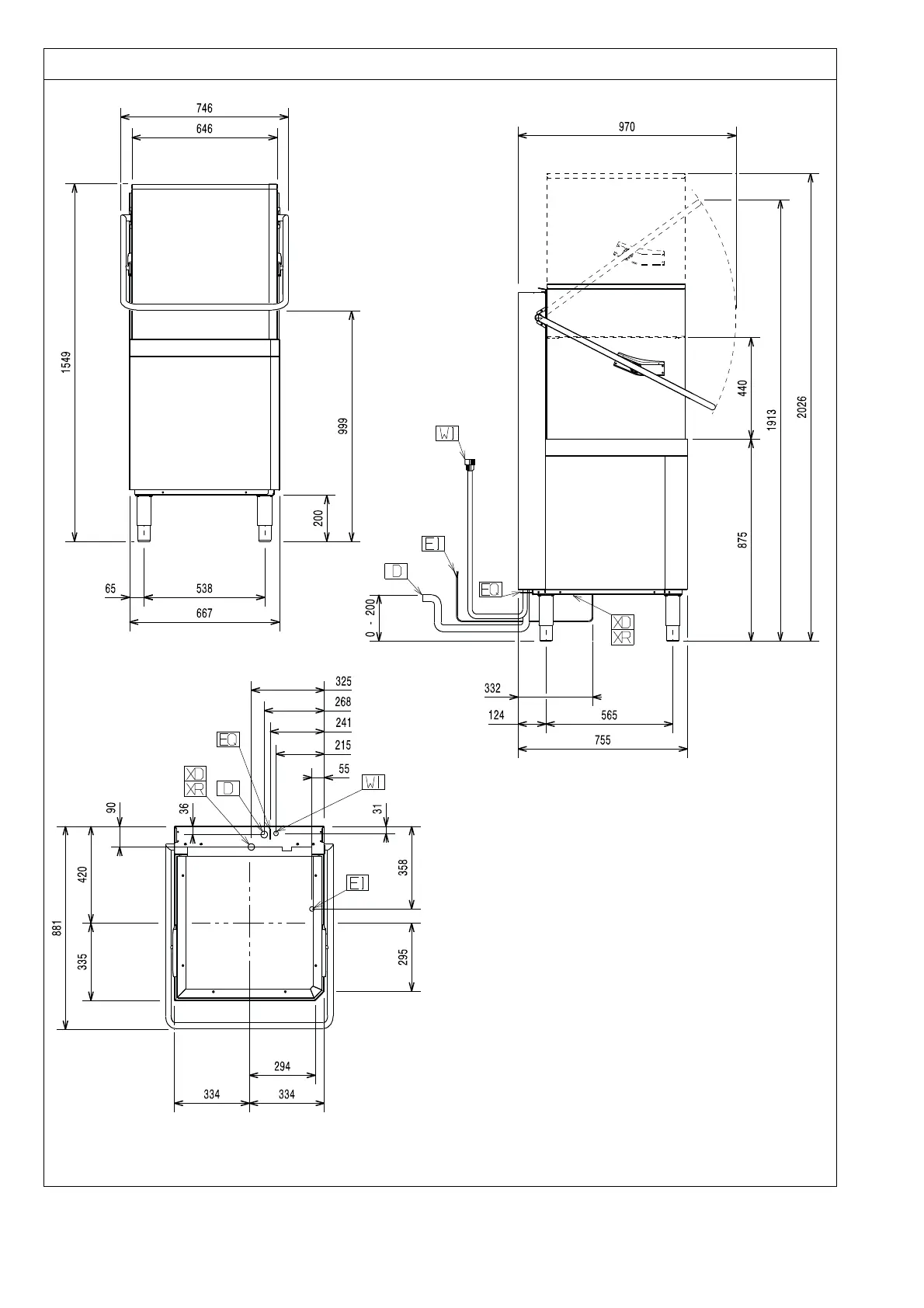
Installation diagram - manual hood type (single skin) without drain pump and without energy saving device (ESD)
LEGEND
WI Water inlet
CWI Cold water inlet
D Drain outlet
EI Power supply entry
EQ Equipotential screw
V Ventilation
XD Pipe inlet for detergent
XR Pipe inlet for rinse aid
XI Pipe inlet for de-lime

Table of Contents

Related product manuals