EasyManua.ls Logo

Electrolux EK 306 - Page 36

Electrolux EK 306
Print Icon
To Next Page IconTo Next Page
To Next Page IconTo Next Page
To Previous Page IconTo Previous Page
To Previous Page IconTo Previous Page
Loading...
36
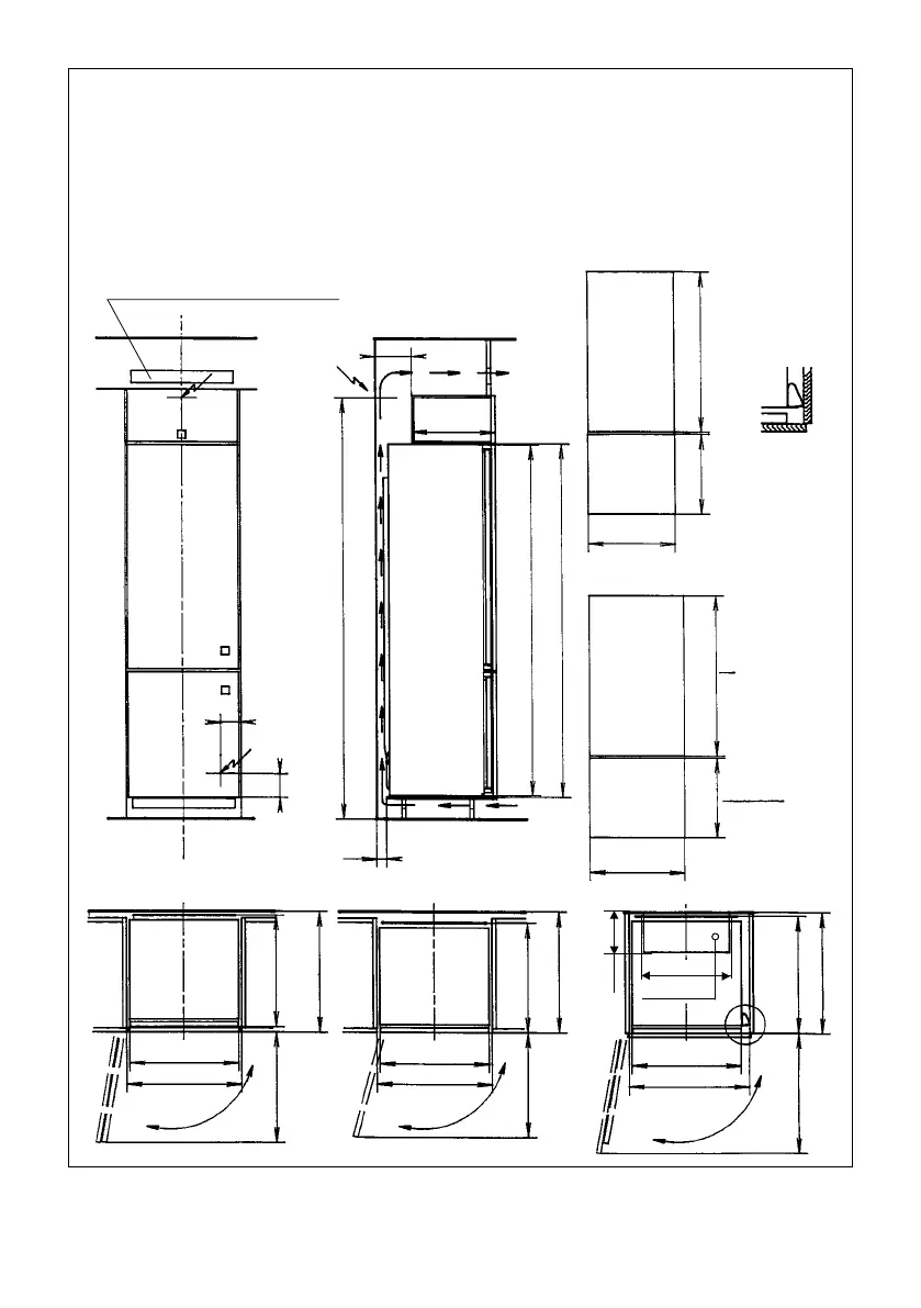
Frigorifero da incasso
nicchia SMS 14/6 (1778 mm)
panello della porta CH
panello della porta EU
spessore
16 24 mm
max. 594
integrato CH
quadro decorativo
integrato EU
min. 50
(420)
2050 SMS-Norm
apparecchio 1776
nicchia 1778
min. 50
547
-
0
2
spessore
16 20 mm
100
120
apparecchio 570
nicchia 605
apparecchio 545
525
602
555
nicchia 605
apparecchio 545
nicchia 550
apparecchio 548
nicchia 550
apparecchio 548
nicchia 550
apparecchio 548
430
nicchia 560 568
100° 105° 100°
particolare A
A
Sezione d’aerazione min. 200 cm
2
,
superiore ed inferiore
Il funzionamento ottimale
dell’apparecchio è garantito anche
per la nicchia profonda 550
1143
1143+sporgente della nicchia
sopra -fessura/2
635
635+porgente della nicchia
sotto -fessura/2
200
aerazione
9/6-fessura5/6-fessura
La protezione contro le scariche elettriche deve essere assicurata
dall’installatore. Se la presa di corrente non è più accessibile dopo l’in-
castro dell’appa recchio, é necessario prevedere un sistema di disinser-
zione. Ammessi sono i sistemi di disinserzione con interruttori aventi
un’apertura fra i contatti di almeno 3 mm e che interrompono la reta
tramite un teleruttore assicurato da dei fusibili.

Related product manuals