EasyManua.ls Logo

Electrolux EK 306 - Page 47

Electrolux EK 306
Print Icon
To Next Page IconTo Next Page
To Next Page IconTo Next Page
To Previous Page IconTo Previous Page
To Previous Page IconTo Previous Page
Loading...
47
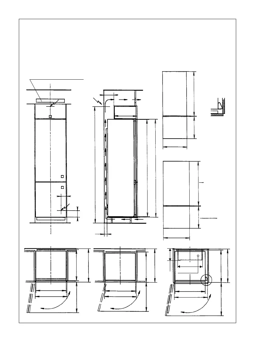
Fitted refrigerator
Recess SMS 14/6 (1778 mm)
Door leaves CH
Door leaves EU
Thickness
16 24 mm
max. 594
Integral CH
Decorative frames
Integral EU
Min. 50
(420)
2050 SMS-Standard
appliance 1776
Recess 1778
Min. 50
547
-
0
2
Thickness
16 20 mm
100
120
appliance 570
Recess 605
appliance 545
525
602
555
Recess 605
appliance 545
Recess 550
appliance 548
Recess 550
appliance 548
Recess 550
appliance 548
430
Recess 560 568
100° 105° 100°
Detail A
A
Ventilation cross-section
top and bottom min. 200 cm
2
For recess depths of 550,
the power data of the appliance
are guaranteed the same
1143
1143 + recess projection
above - opening/2
635
635+recess projection
below -opening/2
200
Ventilation
9/6-opening5/6-opening
Electrical safety (personnel protection safety) is to be ensured during
fitting. If the mains power supply is not accessible after installation
then a separation device is to be provided by the installer. This can be
a switch with a contact opening of at least 3 mm, this includes line
protection cut-outs as well as contactors.

Related product manuals