EasyManua.ls Logo

Electrolux FAA087P7A-4 - Page 46

Electrolux FAA087P7A-4
61 pages
Print Icon
To Next Page IconTo Next Page
To Next Page IconTo Next Page
To Previous Page IconTo Previous Page
To Previous Page IconTo Previous Page
Loading...
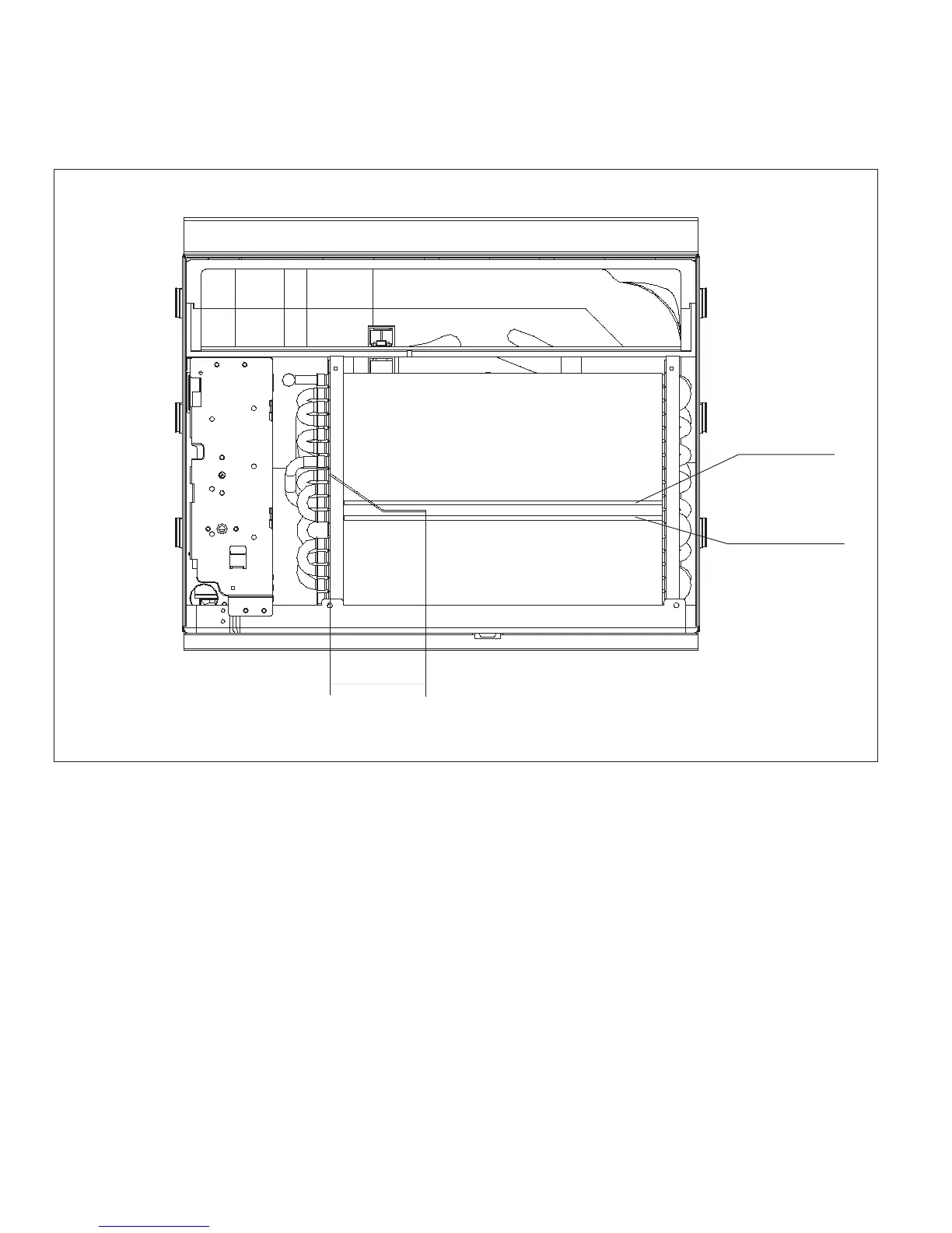
The 5th pipe
The 4th pipe
10cm
Control Thermostat Location diagram for OPP5
46

Related product manuals