EasyManua.ls Logo

Electrolux RM 4805 - Operation with Solar Charging Regulators; Connection Diagram (Separate)

Electrolux RM 4805
19 pages
Print Icon
To Next Page IconTo Next Page
To Next Page IconTo Next Page
To Previous Page IconTo Previous Page
To Previous Page IconTo Previous Page
Loading...
9.0 Operation of AES II with solar charging regulators
Operation of Electrolux refrigerators with AES II control and solar charging regulators.
It is currently possible to operate Electrolux AES refrigerators using two types of solar charging regula-
tors which are equipped with an AES output signal:
SR 240 DUO (Votronic, Grebenhain, Tel: +49-(0)-6644-7544
SAC50X or SAC50E (Solar Display Controller) with matching charging regulator (Meyer
Solartechnologie, 88682 Salem, Tel: +49-(0)-7553-60508
Both of these solar charging regulators, when used in conjunction with an AES II, will ensure correct
operation of an AES II refrigerator equipped with a solar charging regulator and simultaneously offer
battery discharge protection.
It is important that the connection instructions provided by the manufacturer of the solar charging regu-
lator are adhered to. Please note that the solar input of the AES is a sensor input, which must be con-
nected to the corresponding sensor output of the solar charging regulator. Do not connect the standard
12V output (commonly referred to as on-board power supply +) as this would result in continuous 12V
operation of the refrigerator and the battery would be completely discharged in a very short time. The
solar input of the AES has a function similar to the D+ input, which will only allow 12V operation with
the motor (generator) running, and if sufficient power is available for 12V operation.
Due to the high current flow required for 12V operation the solar unit must be able to provide
at least 10-12 amperes, even when full sunlight is not available, to prevent overloading the on-
board battery.
Correct operation of the refrigerator cannot be guaranteed with all other kinds of connection,
particularly when solar charging regulators without AES switching outputs are used.
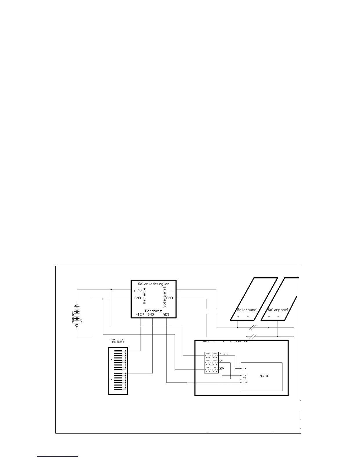
1. Connection diagram (separate connections for battery and on-board power supply)
17
AES has 12V level: refrigerator with 12V operation
AES has 0V level: normal operation (220V, gas or 12V with motor running)
Refrigerator with AES
Terminal block on top of refrigerator
Connecting diagram for AES II operation
with solar regulator and AES switching out-
put.
Seperate connections for battery and on-
board power supply.
Solar charging regulator
on- board battery
terminal box
on-board power supply
on-board power supply

Other manuals for Electrolux RM 4805

Related product manuals