EasyManua.ls Logo

Electrolux SB330NICN - Installation

Electrolux SB330NICN
Print Icon
To Next Page IconTo Next Page
To Next Page IconTo Next Page
To Previous Page IconTo Previous Page
To Previous Page IconTo Previous Page
Loading...
sources, door handles, door hinges, trays
and baskets. Door gaskets are available
for at least 10 years after the model has
been discontinued. The duration may be
longer in your country. For further
information, please visit our website.
Please note that some of these spare
parts are only available to professional
repairers, and that not all spare parts are
relevant for all models.
2.7 Disposal
WARNING!
Risk of injury or suffocation.
Disconnect the appliance from the mains
supply.
Cut off the mains cable and discard it.
Remove the door to prevent children and
pets to be closed inside of the appliance.
The refrigerant circuit and the insulation
materials of this appliance are ozone-
friendly.
The insulation foam contains flammable
gas. Contact your municipal authority for
information on how to discard the
appliance correctly.
Do not cause damage to the part of the
cooling unit that is near the heat
exchanger.
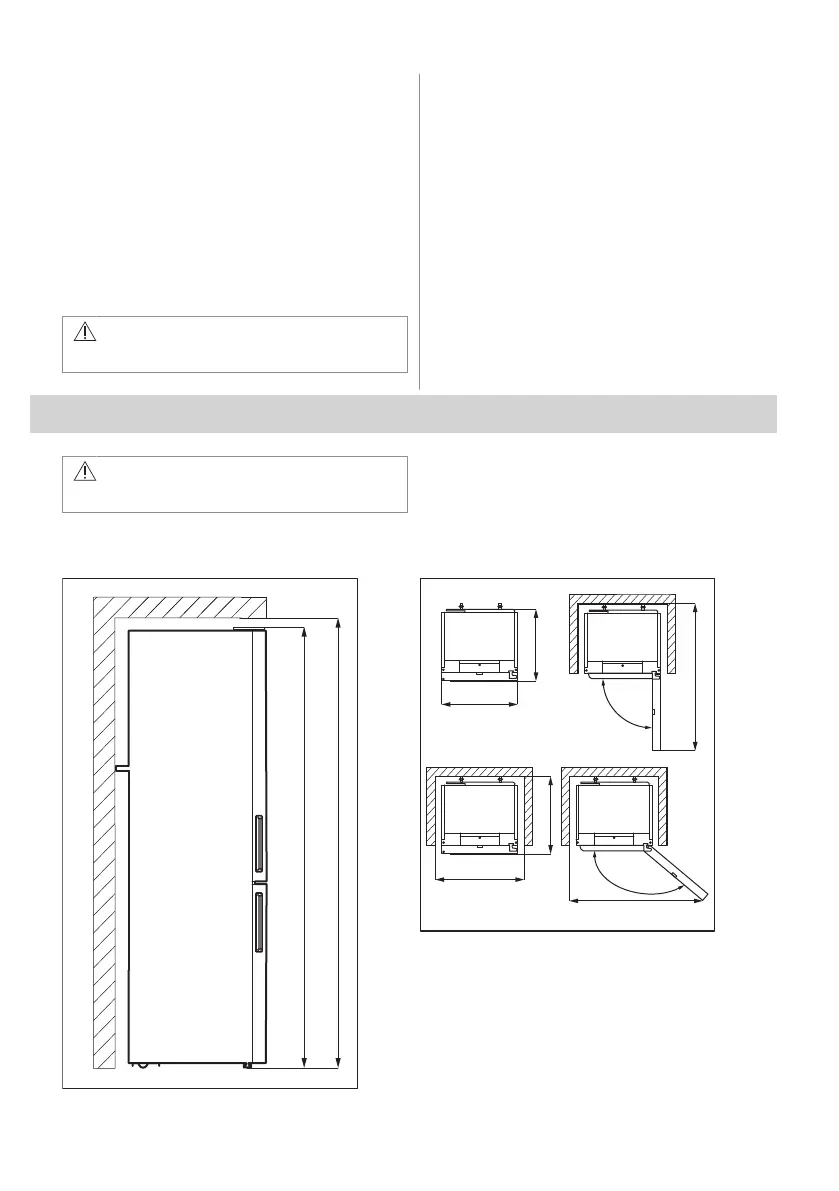
3. INSTALLATION
WARNING!
Refer to Safety chapters.
3.1 Dimensions
H1
H2
D1
W1
D3
9
D2
W2
W3
140°
ENGLISH 91

Related product manuals