EasyManua.ls Logo

Elenberg DW-9325 - Page 10

Default Icon
Print Icon
To Next Page IconTo Next Page
To Next Page IconTo Next Page
To Previous Page IconTo Previous Page
To Previous Page IconTo Previous Page
Loading...
10
Preparations should be made before moving the dishwasher to the
installation place.
1. Choose a place near the sink to facilitate the installation of inlet and
drain hoses (see figure 1).
2. If dishwasher is installed at the corner of the cabinet, there should
be some space (illustrated in figure 2) when the door is opened.
Figure 1
Cabinet dimensions Less than 5mm
between the top of dishwasher and
cabinet and the outer door aligned
to cabinet.
Figure 2
Minimum space when the door is
opened.
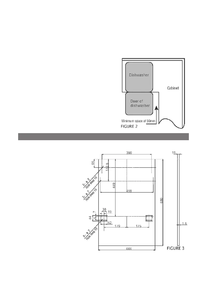
1. The aesthetic wood
-
en panel could be
processed according
to the figure 3.
Figure 3
The aesthetic panel
should be processed
in accordance with
the illustrated di-
mensions.
2. Install the hook on
the aesthetic wood-
en panel and put the
hook into the slot
of the outer door of
dishwasher(see fig-
ure 4a). After posi-
tioning of the panel
, fix the panel onto the outer door by screws and bolts(See figure
4b).
AESTHETIC PANEL’S DIMENSIONS AND INSTALLATION