EasyManua.ls Logo

Elenberg DW-9325 - Page 12

Default Icon
Print Icon
To Next Page IconTo Next Page
To Next Page IconTo Next Page
To Previous Page IconTo Previous Page
To Previous Page IconTo Previous Page
Loading...
12
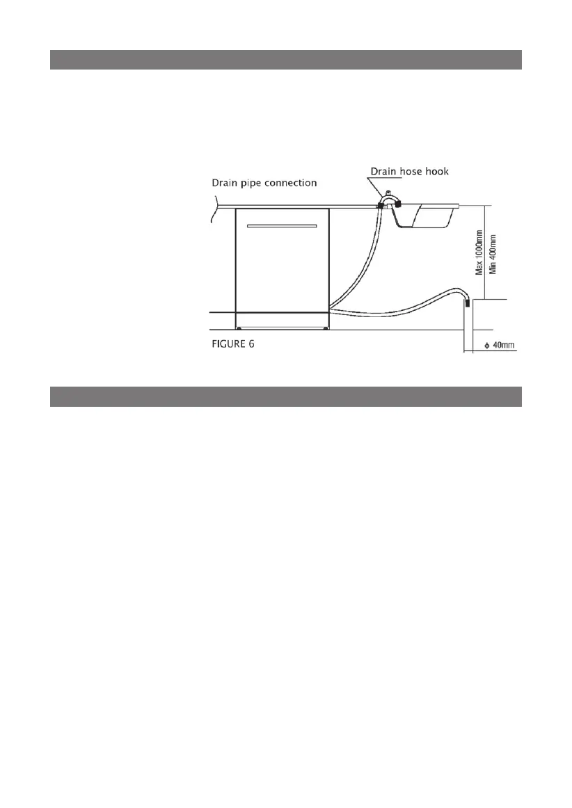
CONNECTION OF DRAIN HOSES
Insert the drain hose into a drain pipe with a minim urn diameter
of 4cm, or let it run in to the sink, making sure to avoid bending or
crimping it. Use the special plastic support that comes with the appli-
ance (figure 6). The free and of the hose must be at a height between
400 and 1000mm
and must not be
immersed in water
to avoid the back
flow of it. ATTEN-
TION: The spe-
cial plastic hose
support must be
solidly fastened
to the wall to
prevent the drain
hose from mov-
ing and allowing
water to spill outside the drain.
1. Install the furniture door to the outer door of the dishwasher using
the brackets provided. Refer to the template for positioning of the
brackets.
2. Adjust the tension of the door springs by using an Allen key turn-
ing in a clockwise motion to tighten the left and right door springs.
Failure to do this could cause damage to your dishwasher (Illustra-
tion 2).
3. Connect the inlet hose to the cold water supply.
4. Connect the drain hose. Refer to diagram. (Figure 6)
5. Connect the power cord.
6. Put the dishwasher to slide rails (lllustration4).
7. Add the condensation strip following instructions on the reverse
side of the condensation strip.
8. Place the dishwasher into position.
9.
Level the dishwasher. The rear feet can be adjusted from the front of
the dishwasher by turning the screws on the left and right hand side
of the cabinet (Illustration 6A). To adjust the front feet, use a wrench
and turn the front feet until the dishwasher is level (Illustration 6B).
10.The dishwasher must be secured in place. There are two ways to
do this:
DISHWASHER INSTALLATION STEPS