EasyManua.ls Logo

Elenberg DW-9325 - Page 3

Default Icon
Print Icon
To Next Page IconTo Next Page
To Next Page IconTo Next Page
To Previous Page IconTo Previous Page
To Previous Page IconTo Previous Page
Loading...
3
Действия, которые необходимо осуществить, перед установкой
машины на ее место.
1. Выберите место рядом с трубами водоснабжения, чтобы
облегчить установку подачи и слива воды (рис. 1).
2. Если машина устанавливается рядом с углом, отметьте, что для
нормальной работы, необходимо свободное пространство, как
показано на рис. 2.
Рисунок 1
Расстояние между стенками
машины и стенками ниши, для нее,
должно быть меньше 5 мм.
Рисунок 2
Минимальное расстояние, нужное,
чтобы открыть дверь.
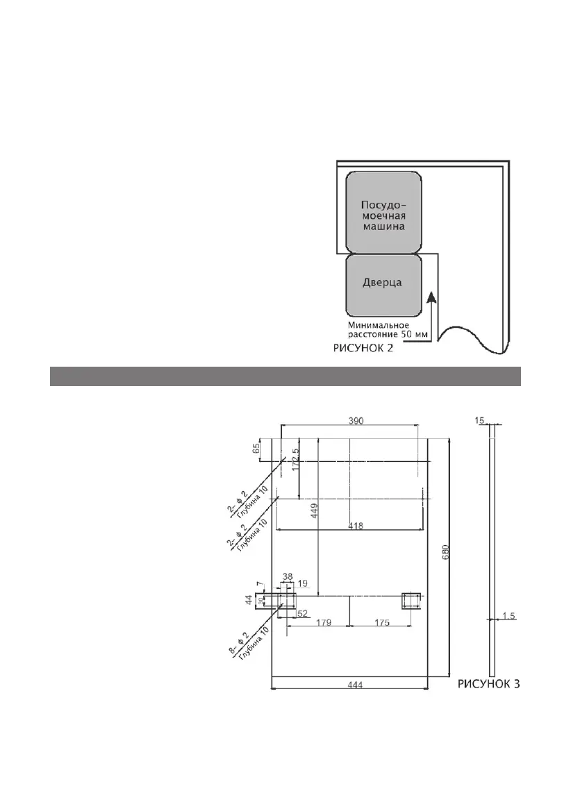
1. Процесс установки
внешней панели
показан на рис. 3.
Рисунок 3
Соблюдайте раз-
меры, указанные
на рисунке, при
установке панели.
2.
Установите крепле-
ния на внешнюю
панель и с их помощью
прикрепите ее к
дверце машины (рис.
4a).
После этого
привинтите ее (рис.
4b).
РАЗМЕРЫ И УСТАНОВКА ВНЕШНЕЙ ПАНЕЛИ