EasyManua.ls Logo

Elvox 560A - Page 9

Elvox 560A
12 pages
Print Icon
To Next Page IconTo Next Page
To Next Page IconTo Next Page
To Previous Page IconTo Previous Page
To Previous Page IconTo Previous Page
Loading...
-
10
13
11
12
V123
6
8
9
7
4
5
3
M
1
2
V1
V2
V
123
V1M1 M2V2
PRI
B
1C2 32
A
65S
C
B
CH56S
L1
A
AM6+S 5 87+T-S1O15 C1
8
D
+T
6
7
5
CH
CH
V/V2
-
M/V1
ELVOX
RETE
NETWORK
RÉSEAU-NETZ
RED-REDE
ALIMENTATORE-POWER SUPPLY
ALIMENTATION-NETZGERÄT
ALIMENTADOR Art. 6681
N.B.
In caso di ronzio sulla
fonica spostare il com-
mutatore “A-B” situato
sotto il coperchio in
posizione “A”.
If a humming sound is
detected on the phonic
line, set slide switch “A-
B” under the cover to
position “A”.
en cas de bourdonne-
ment sur la ligne phoni-
que déplacer le commu-
tateur “A-B”, situé sous
le couvercle, sur la posi-
tion “A”.
Ist bei der
Audioverbindung ein
Brummton zu hören, muß
der Schiebeschalter “A-
B” unter dem
Gehäusedeckel in
Position “A” gebracht
werden.
En caso de zumbido en la
fónica desplazar el con-
mutador “A-B” que se
encuentra debajo de la
tapa en la posición “A”.
No caso de ruído na linha
audio mudar o comuta-
dor “A-B” situado na
tampa para a posição
“A”.
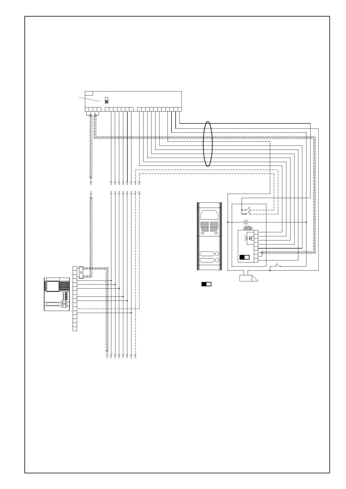
A- Targa per videocitofono serie GALILEO, 8100
GALILEO series video door entry panel
Plaque de rue vidéo série GALILEO
Video-Klingeltableau der Baureihe GALILEO
Placa vídeo serie GALILEO
Botoneira video série GALILEO
B- Pulsante supplementare serratura
Additional push-button for lock
Poussoir supplémentaire gâche
zusätzliche Türöffnertaste
Pulsador suplementario cerradura
Botão suplementar de trinco
C- Serratura elettrica
Electric lock
Gâche électrique
Elektrischer Türöffner
Cerradura eléctrica
Trinco eléctrico 12V~
D- Telecamera con posto esterno
Camera with speech unit
Caméra avec micro et haut-parleur
Kamera mit Außenstelle
Cámara con aparato externo
Telecâmara com posto externo
Art. 560A
L1- Lampada luce targa
Bulb for panel lighting
Lampe d’éclairage plaque
Birne für Tastenbeleuchtung
Lámpara luz escalera
Lâmpada da luz da botoneira
(3x24V 3W max.)
10x24V 3W con/with Art. M832
16X24V 3W con/with Art. 832/030
CAVO - CABLE
CÂBLE - KABEL
CABLE - CABO
Art. 61/001 - 61/003
IMPIANTO DI VIDEOCITOFONO MONO-PLURIFAMILIARE A VIVA VOCE
SINGLE AND MULTI RESIDENCE VIDEO DOOR ENTRY SYSTEM WITH OPEN VOICE
PORTIER VIDÉO MONO ET PLURI-FAMILIAL À VIVE VOIX
VIDEOTÜRSPRECHANLAGE FÜR EIN- UND MEHRFAMILIENHÄUSER MIT FREISPRECHMONITOREN
INSTALACIÓN DE VÍDEO PORTERO PARA UNA O VARIAS FAMILIAS CON VIVA VOZ BICANAL
INSTALACÄO DE VIDEO PORTEIRO ALTA VOZ BICANAL PARA UNA OU VÁRIAS FAMILIAS
MONITOR
MONITEUR
ART. 5651
Montante
Cable riser
Steigleitung
Montant
Montante
Coluna montante
SW1
SW1
coax.
dopp.

Related product manuals