EasyManua.ls Logo

Elvox 931 - Page 3

Elvox 931
8 pages
Print Icon
To Next Page IconTo Next Page
To Next Page IconTo Next Page
To Previous Page IconTo Previous Page
To Previous Page IconTo Previous Page
Loading...
PRI
27C23-1C18
B
L1
3
21
615ASO
6E
3
2
1
AU
C
A
7
6
5
8
3
4
D
C
6S
S
7
3
1
2
6
6E
8
E
7
6P
6E
6
3
2
1
AU
A
5
Art.8878
CH
3
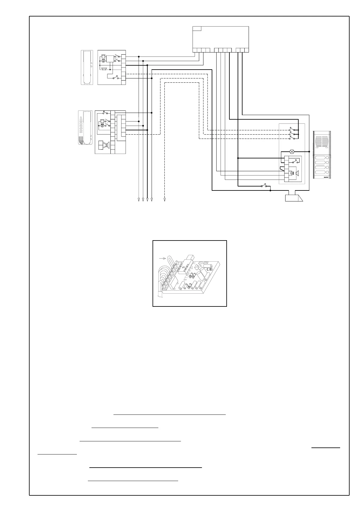
SCHEMA DI COLLEGAMENTO PORTIERE ELETTRICO CON SISTEMA DI CHIAMATA "SOUND SYSTEM", SEGRETO
DI CONVERSAZIONE E CON APERTURA
DIRETTA DELLA SERRATURA.
WIRING DIAGRAM OF ELECTRIC DOOR-OPENER SYSTEM WITH CALL SYSTEM "SOUND SYSTEM", CONVERSA-
TION PRIVACY AND DIRECT LOCK RELEASE.
SCHÉMA DES CONNEXIONS POUR PORTIER ÉLECTRIQUE AVEC APPEL "SOUND SYSTEM", SECRET DE CON-
VERSATION ET OUVERTURE DIRECTE DE LA GÂCHE.
SCHALTPLAN FÜR TÜRSPRECHANLAGE MIT "SOUND SYSTEM" RUF, MITHÖRSPERRE UND DIREKTER
TÜROFFNUNG.
ESQUEMA DE CONEXIONADO PORTERO ELÉCTRICO CON LLAMADA "SOUND SYSTEM", SECRETO DE
CONVERSACIÓN Y ABERTURA
DIRECTA DE LA CERRADURA.
ESQUEMA DE LIGAÇÃO DO PORTERO ELÉCTRICO COM CHAMADA "SOUND SYSTEM" E SEGREDO DE
CONVERSAÇÃO E ABERTURA DIRECTA DO TRINCO.
DISEGNO N° C 2180 R7
RETE-NETWORK
RÉSEAU-NETZ
RED-REDE
CITOFONO
PHONE
POSTE
HAUSTELEFON
TELÉFONO
TELEFONE
Art. 8878 (875/081)
CITOFONO
PHONE
POSTE
HAUSTELEFON
TELÉFONO
TELEFONE
Art. 6200 + 6155
(Art. 7100 + 7155)
ALIMENTATORE
POWER SUPPLY
ALIMENTATION
NETZGERÄT
ALIMENTADOR
Art. 931
A- Targa con posto esterno
Entrance panel
Plaque de rue avec poste externe
Klingeltableau mit Außenstelle
Placa con aparato externo
Botoneira com posto externo
serie-série Patavium
Galileo Security - Galileo
B- Pulsante supplementare serratura
Additional push-button for lock
Poussoir supplémentaire gâche
zusätzliche Türöffnertaste
Pulsador suplementario cerradura
Botão suplementar de trinco
C- Serratura elettrica - Electric lock
Gâche électrique - Elektrischer Türöffner
Cerradura eléctrica - Trinco eléctrico 12V
D- Posto esterno - Outdoor unit
Poste externe - Außenstelle
Aparato externo - Posto esterno
Art. 930 - 930A
E- Art. 6155
L1- Lampada luce targa
Bulb for panel lighting
Lampe d’éclairage plaque
Birne für Tastenbeleuchtung
Lámpara luz escalera
Lâmpada da luz da botoneira
(3x24V 3W max.)
10x24V 3W con/with Art. M832
16X24V 3W con/with Art. 832/030
N.B.
Spostare il ponticello sui terminali "C-AS"
Move jumper to terminal "C-AS"
Deplacer le pontage sur les bornes "C-AS"
Die Brücke an die Klemmen "C-AS" setzen
Colocar el puente en los bornes "C-AS"
Colocar a ponte nos terminais "C-AS"
Art. 875/081
Art. 8878

Related product manuals