EasyManua.ls Logo

Elvox 931 - Page 4

Elvox 931
8 pages
Print Icon
To Next Page IconTo Next Page
To Next Page IconTo Next Page
To Previous Page IconTo Previous Page
To Previous Page IconTo Previous Page
Loading...
6E
3
7
8
6
1
2
CH
12
3S
13-2
PRI
4
3
8
5
6
7
L1
B
ASC2 6 87C1O15
D
A
15324
A
C
CN1
33
8
6P
4
6S
6E
6
56E
AU AU
2
1
E
2
1
7
C
4
DISEGNO N° C 3318 R2
RETE-NETWORK
RÉSEAU-NETZ
RED-REDE
ALIMENTATORE
POWER SUPPLY
ALIMENTATION
NETZGERÄT
ALIMENTADOR
Art. 931
N.B.
Tenere il ponticello sui terminali "AC-C"
Leave jumper to terminal "AC-C"
Laisser le pontage sur les bornes "AC-C"
Die Brücke an die Klemmen "AC-C"
aufheben.
Dejar en su lugar el puente en los bornes
"AC-C"
Deixar no seu lugar a ponte nos terminais
"AC-C"
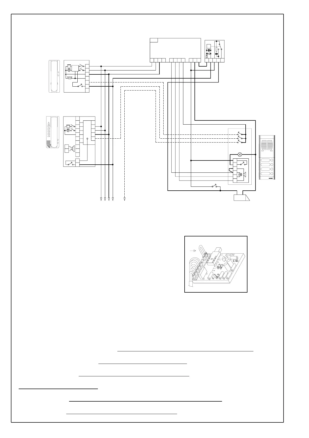
SCHEMA DI COLLEGAMENTO PORTIERE ELETTRICO CON SISTEMA DI CHIAMATA "SOUND SYSTEM",
SEGRETO DI CONVERSAZIONE E CON APERTURA
DELLA SERRATURA DOPO LA CHIAMATA.
WIRING DIAGRAM OF ELECTRIC DOOR-OPENER SYSTEM WITH CALL SYSTEM "SOUND SYSTEM",
CONVERSATION PRIVACY AND LOCK RELEASE
AFTER THE CALL.
SCHÉMA DES CONNEXIONS POUR PORTIER ÉLECTRIQUE AVEC APPEL "SOUND SYSTEM", SECRET
DE CONVERSATION ET OUVERTURE DE LA GÂCHE APRÈ L'APPEL.
SCHALTPLAN FÜR TÜRSPRECHANLAGE MIT "SOUND SYSTEM" RUF, MITHÖRSPERRE UND
TÜRÖFFNUNG NACH DEM RUF.
ESQUEMA DE CONEXIONADO PORTERO ELÉCTRICO CON LLAMADA "SOUND SYSTEM", SECRETO DE
CONVERSACIÓN, Y ABERTURA DE LA CERRADURA DESPUES DE LA LLAMADA.
ESQUEMA DE LIGAÇÃO DO PORTERO ELÉCTRICO COM CHAMADA "SOUND SYSTEM", SEGREDO DE
CONVERSAÇÃO E ABERTURA DO TRINCO APOS A CHAMADA.
RELÈ
RELAY
RELAIS
Art. 170/101
C- Serratura elettrica
Electric lock
Gâche électrique
Elektrischer Türöffner
Cerradura eléctrica
Trinco eléctrico 12V
D- Posto esterno - Outdoor unit
Poste externe - Außenstelle
Aparato externo - Posto esterno
Art. 930 - 930A
E- Art. 6155
A- Targa con posto esterno
Entrance panel
Plaque de rue avec poste externe
Klingeltableau mit Außenstelle
Placa con aparato externo
Botoneira com posto externo
serie-série Patavium
Galileo Security - Galileo
B- Pulsante supplementare serratura
Additional push-button for lock
Poussoir supplémentaire gâche
zusätzliche Türöffnertaste
Pulsador suplementario cerradura
Botão suplementar de trinco
Art. 875/081
Art. 8878
L1- Lampada luce targa
Bulb for panel lighting
Lampe d’éclairage plaque
Birne für Tastenbeleuchtung
Lámpara luz escalera
Lâmpada da luz da botoneira
(3x24V 3W max.)
10x24V 3W con/with Art. M832
16X24V 3W con/with Art. 832/030
CITOFONO
PHONE
POSTE
HAUSTELEFON
TELÉFONO
TELEFONE
Art. 8878 (875/081)
CITOFONO
PHONE
POSTE
HAUSTELEFON
TELÉFONO
TELEFONE
Art. 6200 + 6155
(Art. 7100 + 7155)

Related product manuals