EasyManua.ls Logo

Empire Heating Systems DV-20E - Page 10

Empire Heating Systems DV-20E
19 pages
Print Icon
To Next Page IconTo Next Page
To Next Page IconTo Next Page
To Previous Page IconTo Previous Page
To Previous Page IconTo Previous Page
Loading...
19562-3-0907Page 10
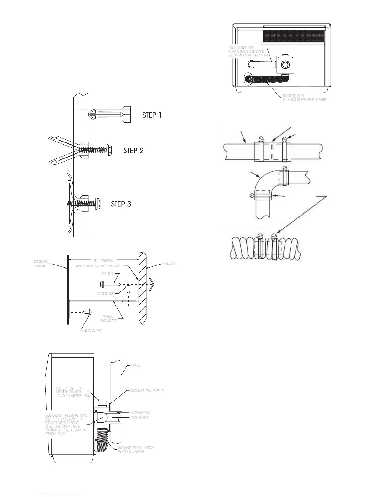
Installing Wall Bracket (Figures 5 and 6)
After finding a location for the furnace, gas supply and vent, the
wall bracket must be positioned and installed. The bracket should
be mounted to the wall studs, if possible, or anchored solidly to the
wall. Use the (2) 10 x 1" (25mm) hex-head screws or (2) plastic
anchors provided. Drill (2) 5/16" (8mm) diameter holes in wall if
plastic anchors are used. Attach the two wall mounting brackets
to the casing back by using (4) 10 x 1/2" (13mm) hex-head screws
provided.
Figure 5
WALL
CASING
BACK
#10 X 1"
WALL MOUNTING BRACKET
WALL
BRACKET
#10 X 1/2"
#10 X 1/2"
4" (102mm)
Figure 6
WALL
INTAKE FLEX HOSE
WITH CLAMPS
EXHAUST
INTAKE AIR
MOUNTING PLATE
EXHAUST ELBOW MAY
BE CUT TO LENGTH
TO FIT VENT BOX.
SECURE IN PLACE
USING HOSE CLAMPS
PROVIDED.
KEEP CAP ON
UN-USED AIR
INTAKE OPENING
Figure 7
EXHAUST AIR
ORANGE SILICONE
ELBOW CONNECTOR
INTAKE AIR
BLACK FLEXIBLE HOSE
Figure 8
Figure 9
Venting (Figures 7, 8 and 9)
This unit is vented directly out the back using the concentric vent
tube assembly provided. See Figure 2 for vent hole location. This
hole location can be conveniently moved closer to unit exhaust
outlet tube to avoid wall stud interference if necessary. The orange
silicone exhaust elbow would need to be cut to length. Do not
locate vent directly behind the exhaust outlet. Do not use the orange
silicone elbow for extended vent runs where the possibility of
flue condensate exists unless the run is horizontal and the elbow is
sloped downward away from the heater. See Figure 12 for extended
vertical venting.
The vent provided will accommodate walls up to 10" thick and
can be cut shorter for thinner walls if desired by using a hacksaw
or cut-off saw. Be sure to leave the minimum 3/4" of tube length
extending beyond the outside wall plate. Both the inner and outer
tube will be cut to the same length as the inner exhaust tube has an
extension piece which is added during final outside assembly.
VENT TUBING
SILICONE COUPLING
HOSE CLAMP
HOSE CLAMP
EDGE
EXHAUST CONNECTIONS
INTAKE FLEX HOSE CONNECTION
WITH INTERNAL METAL COUPLING
VENT COUPLING CONNECTIONS
EXTENDED VENT

Related product manuals