EasyManua.ls Logo

EngA Engineered Air XES320 - Vertical Venting; Vertical Vent Cap and Pipe Requirements

Default Icon
30 pages
Print Icon
To Next Page IconTo Next Page
To Next Page IconTo Next Page
To Previous Page IconTo Previous Page
To Previous Page IconTo Previous Page
Loading...
A XES SC MANUAL
IOM-58 17 of 30 June 14 R5
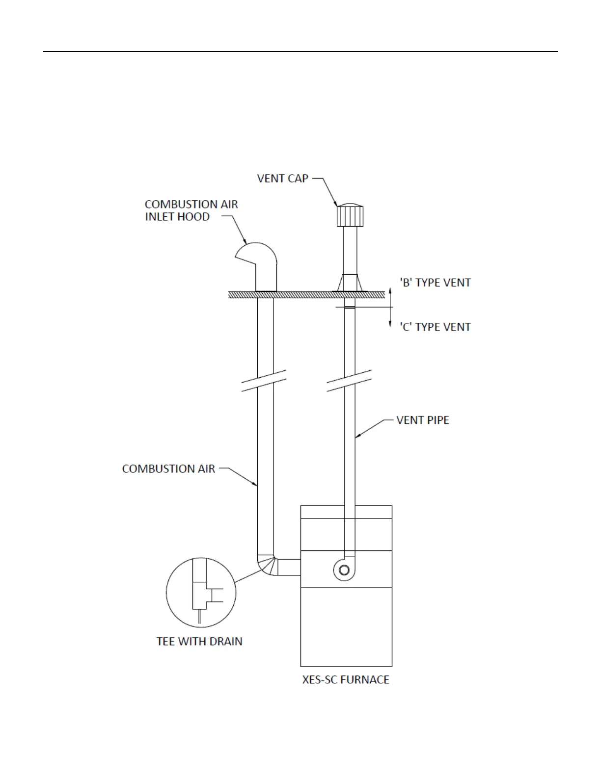
Vertical Vent
An approved vent cap (eg. Breidert), furnished by the customer, must be installed at the termination point
of the vertical vent system. The vent in this arrangement is category 1. ‘B’ Vent is acceptable. Installer
may seal joints as required.
Refer to the sketch below.

Related product manuals