EasyManua.ls Logo

Esse 500 Series - Page 9

Esse 500 Series
32 pages
Print Icon
To Next Page IconTo Next Page
To Next Page IconTo Next Page
To Previous Page IconTo Previous Page
To Previous Page IconTo Previous Page
Loading...
Page 9
525-500VISTA-I07-300719
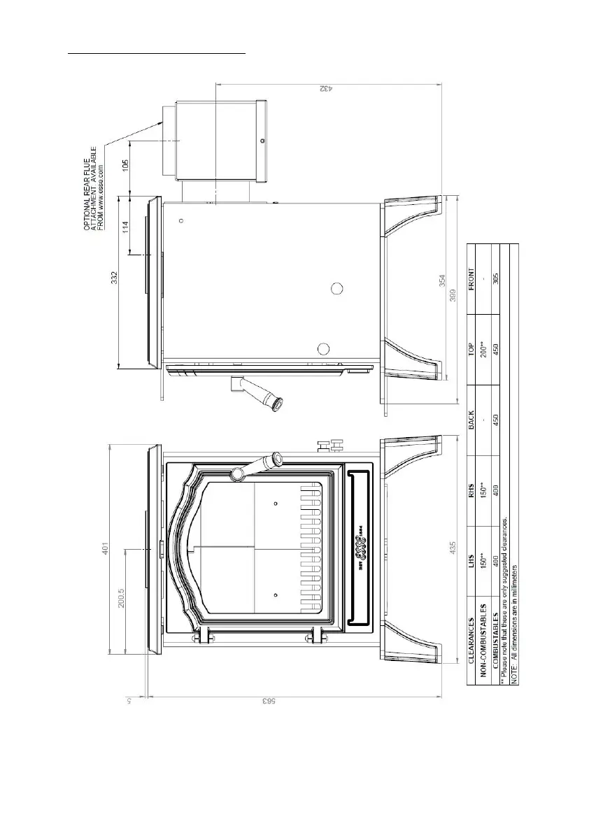
Fig.5 500-Vista Stove Dimensions

Related product manuals