EasyManua.ls Logo

Everdure CBEE61 - Built-in Cooktop Installation

Everdure CBEE61
12 pages
Print Icon
To Next Page IconTo Next Page
To Next Page IconTo Next Page
To Previous Page IconTo Previous Page
To Previous Page IconTo Previous Page
Loading...
DESIGNED TO PERFECTION
INSTALLATION OF BUILT IN COOKTOP
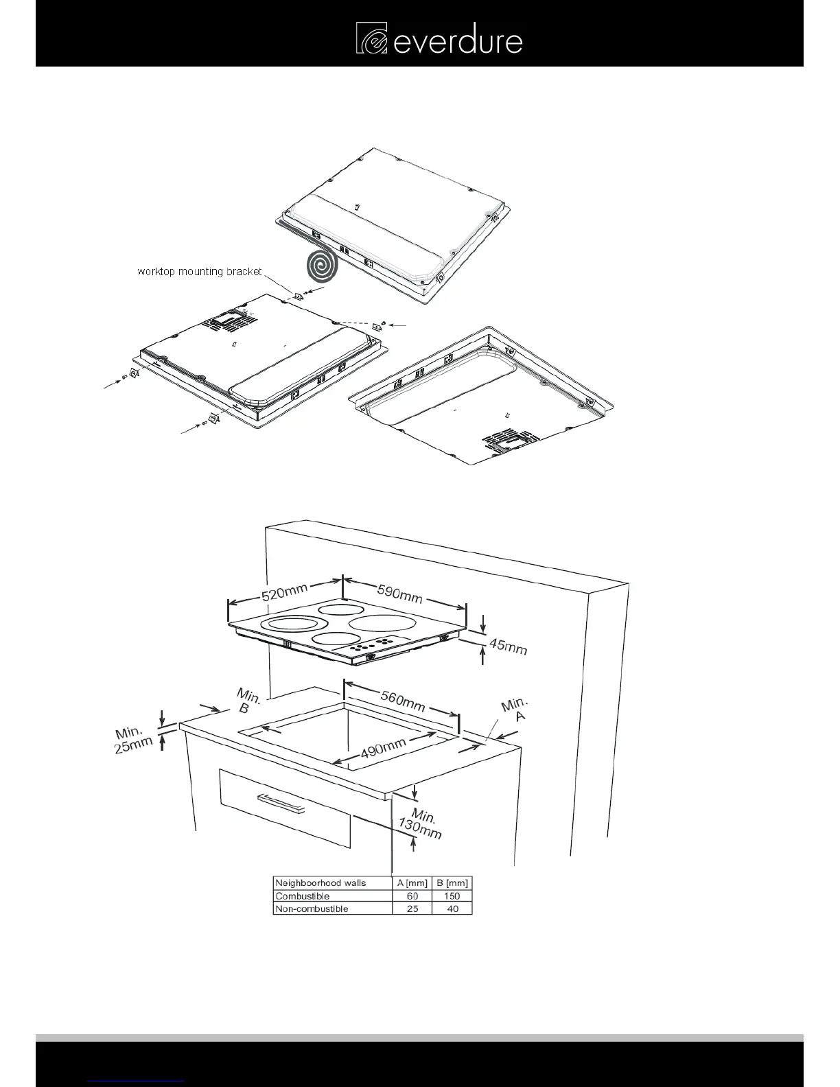
In order to prevent leakage of any liquids on the counter, a special sealing tape is supplied together with
your oven. Apply this seal around the bottom edge of the cooktop (see below). The brackets are installed to
hold the cooktop in place.
Cut out a hole in the bench top as shown below. Place the cooktop (controls to the right) in the hole and fix in
position using he brackets.
The bottom of the cooktop reaches temperatures above 95°C. A board must be placed a minimum of
130mm below the cooktop that prevents anyone from touching the underside of the cooktop.
7

Related product manuals