EasyManua.ls Logo

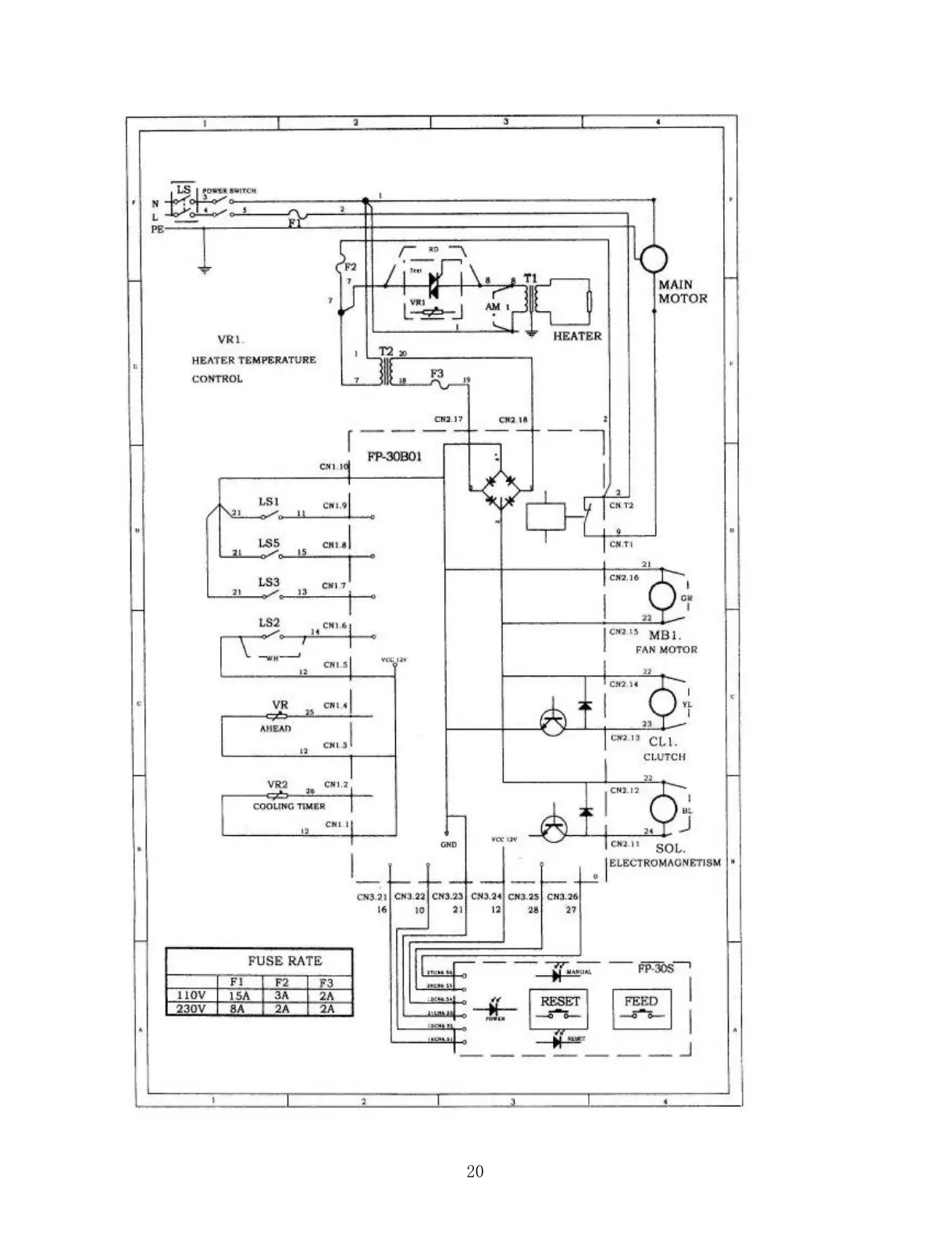
Extend EXS-206 - ELECTRICAL SCHEMATIC

Extend EXS-206
43 pages
Print Icon
To Next Page IconTo Next Page
To Next Page IconTo Next Page
To Previous Page IconTo Previous Page
To Previous Page IconTo Previous Page
Loading...
20
All manuals and user guides at all-guides.com

Other manuals for Extend EXS-206

Related product manuals