EasyManua.ls Logo

FAIR S7 - Page 7

FAIR S7
28 pages
Print Icon
To Next Page IconTo Next Page
To Next Page IconTo Next Page
To Previous Page IconTo Previous Page
To Previous Page IconTo Previous Page
Loading...
Pellets Stove
7
77
7
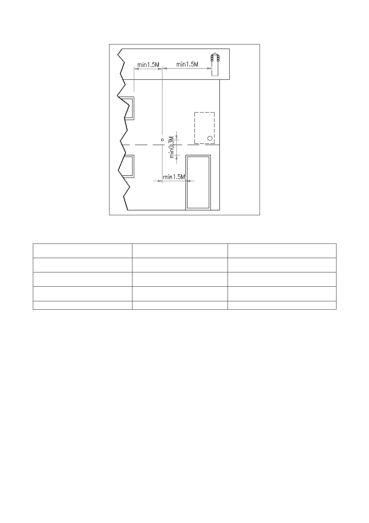
Pic. 7
The air intake must be at a
distance of:
1.5 m Below
Doors, windows, fume exhaust, air
spaces etc.
1.5 m Level with
Doors, windows, fume exhaust, air
spaces etc.
0.3 m Above
Doors, windows, fume exhaust, air
spaces etc.
1.5 m Far away Smoke outlet
Pic. 8
Connection to the chimney flue
Connection to the chimney flueConnection to the chimney flue
Connection to the chimney flue
A pellets stove works with a fumes draft forced by a ventilator, therefore you must be sure that all piping is
properly made as explained in this chapter by specialised staff. The pipes fitting between the stove and the
chimney flue must be short in order to support the draft and avoid the formation of condensate inside the
pipes. The diameter of the fumes pipe must be equal to or bigger than the diameter of the waste fumes pipe
(diameter 80mm). For the fumes pipe fitting you should use pipe made of plate for stove-setting, type B22
with silicone strips, pipes of painted aluminates steel (minimum thickness 1,5mm) or made of stainless steel
A316 or porcelain zed (minimum thickness 0,5mm) with a diameter of 80 mm or 100mm depending on the
type of plant (see picture 2 pag.4), you can not use pipes made of asbestos cement or flexible metal. The
pipes must be sealed with high temperature silicone (min. 250°) and fixed together with a self-threading
screw with diameter 3.9. You must always use a T pipe fitting (see picture 8) with inspection plug, which
allows an easy periodic cleaning of the pipes without having to disassemble them. Make sure that after the
cleaning the inspection plugs are closed hermetically with good strip. For changes of direction you can only
use 3 T pipefitting and the fumes pipe length must not exceed 2 meters of horizontal projection with a
minimum gradient of 5% (see picture 2 pag.4). You can’t link more than one appliance to the same fumes
pipe, you can’t direct the waste fumes coming from above hoods into the same fumes pipe, you can’t
discharge the combustion products through the wall directly to the outside or to close spaces in open air. You
can’t connect any other type of appliances (wood stoves, hoods, boilers etc.). You can’t fit butterfly valves or
anything that can block the fumes passage anyway.